Bản vẽ nhà cấp 4 150 triệu hiện đang là lựa chọn được nhiều gia đình quan tâm, đặc biệt tại các vùng nông thôn, ven đô hoặc khu vực có điều kiện kinh tế vừa phải. Tuy chi phí khiêm tốn nhưng nếu biết cách thiết kế thông minh và sử dụng vật tư hợp lý, bạn hoàn toàn có thể sở hữu một căn nhà tiện nghi, vững chãi và đáp ứng đầy đủ nhu cầu sinh hoạt cơ bản. Cuộc Sống Việt sẽ cùng bạn khám phá từng khía cạnh của mẫu nhà cấp 4 tiết kiệm này để giúp bạn lên kế hoạch xây nhà dễ dàng và hiệu quả hơn.
Nhà cấp 4 150 triệu là gì? Có khả thi không?
Nhà cấp 4 ngân sách 150 triệu là mẫu nhà nhỏ, thường có:
- Diện tích dao động từ 25m² – 45m² tùy khu vực
- Kết cấu đơn giản, một tầng, không mái đúc
- Thi công bằng vật liệu phổ thông, dễ tìm và dễ thi công
Với 150 triệu, bạn hoàn toàn có thể xây một căn nhà cấp 4 nhỏ nhưng khang trang nếu biết tối ưu bản vẽ, phân bổ ngân sách và thi công đúng tiến độ.
Phạm vi xây dựng với ngân sách 150 triệu
Trong khoảng ngân sách này, bạn có thể xây dựng:
- Nhà 1 phòng ngủ + 1 phòng khách + 1 khu bếp + nhà vệ sinh
- Dạng mái tôn, móng nông, sử dụng gạch không nung hoặc tường 10cm để tiết kiệm chi phí
Chi phí ước tính
| Hạng mục | Dự toán (VNĐ) |
| Móng và khung sườn | 30 – 40 triệu |
| Mái tôn + xà gồ | 20 – 25 triệu |
| Tường xây + trát | 25 – 30 triệu |
| Hệ thống điện nước | 10 – 15 triệu |
| Sơn + lát nền + cửa | 20 – 30 triệu |
| Dự phòng phát sinh | 10 – 15 triệu |
Đối tượng phù hợp với mẫu nhà này
Mẫu nhà cấp 4 giá rẻ này phù hợp với:
- Gia đình trẻ chưa có nhiều vốn
- Người lao động tại nông thôn hoặc vùng ven đô
- Người lớn tuổi cần nơi ở nhỏ, gọn gàng
- Xây dựng nhà trọ, nhà tạm trong đất nông nghiệp

>> Tham khảo thêm bài viết Cách xây nhà Đà Lạt tiết kiệm để hiểu rõ cách tối ưu chi phí tại khu vực địa hình đồi núi.
Ưu điểm và hạn chế của nhà cấp 4 giá 150 triệu
Ưu điểm nổi bật
- Chi phí thấp: chỉ bằng 20 – 30% chi phí xây nhà phố
- Thi công nhanh: chỉ 1 – 2 tháng nếu chuẩn bị tốt
- Phù hợp vùng nông thôn: không yêu cầu kỹ thuật phức tạp
- Không cần xin giấy phép (với một số địa phương có diện tích nhỏ và không nằm trong quy hoạch)
Nếu bạn cần một nơi ở ổn định, không quá cầu kỳ, nhà cấp 4 mái Nhật giá rẻ là lựa chọn cực kỳ hợp lý.
Hạn chế cần lưu ý
- Diện tích hạn chế chỉ phù hợp hộ gia đình 2 – 3 người
- Không cách nhiệt tốt nếu dùng mái tôn giá rẻ
- Tuổi thọ công trình ngắn hơn nếu sử dụng vật tư kém chất lượng
- Khó nâng tầng về sau nếu không chuẩn bị móng kỹ từ đầu

Những lưu ý khi thiết kế nhà cấp 4 150 triệu
Khi lên bản vẽ và thi công, bạn cần cân nhắc kỹ để không vượt ngân sách:
Cần tối ưu công năng ngay từ bản vẽ
- Ưu tiên thiết kế mở: kết hợp phòng khách và bếp, loại bỏ hành lang
- Tối giản nội thất cố định, sử dụng nội thất đa năng
- Tận dụng ánh sáng tự nhiên để giảm chi phí điện năng
Ưu tiên kiểu dáng đơn giản, dễ thi công
Một số kiểu dáng phù hợp:
- Nhà hình hộp chữ nhật
- Mái tôn nghiêng một bên
- Tường trát thô hoặc sơn nước đơn sắc
Tránh thiết kế nhiều góc cạnh, mái lệch phức tạp vì sẽ tốn kém chi phí gia công và nhân công.
Lựa chọn vật tư giá rẻ nhưng vẫn đảm bảo chất lượng
Danh sách vật tư nên dùng:
- Gạch không nung: tiết kiệm và thân thiện môi trường
- Thép Việt Nhật hoặc Pomina: uy tín, giá hợp lý
- Tôn cách nhiệt 3 lớp: nếu có thể đầu tư thêm để giảm nóng
- Thiết bị vệ sinh loại phổ thông: Inax hoặc Caesar
Không nên vì tiết kiệm mà chọn vật tư kém chất lượng, dễ dẫn đến công trình nhanh xuống cấp, chi phí sửa chữa còn cao hơn.
Phân bổ ngân sách rõ ràng từng hạng mục
Một mẹo quan trọng là hãy lập bảng phân bổ theo tỷ lệ phần trăm, ví dụ:
- Móng & kết cấu: 30%
- Mái & khung: 20%
- Vật tư hoàn thiện: 30%
- Nhân công & phát sinh: 20%
Điều này giúp bạn kiểm soát chi phí sát thực tế và tránh thiếu hụt giữa chừng.

Các mẫu bản vẽ nhà cấp 4 150 triệu phổ biến
Trong phần này, Cuộc Sống Việt sẽ giới thiệu 10 mẫu bản vẽ được nhiều gia đình lựa chọn:
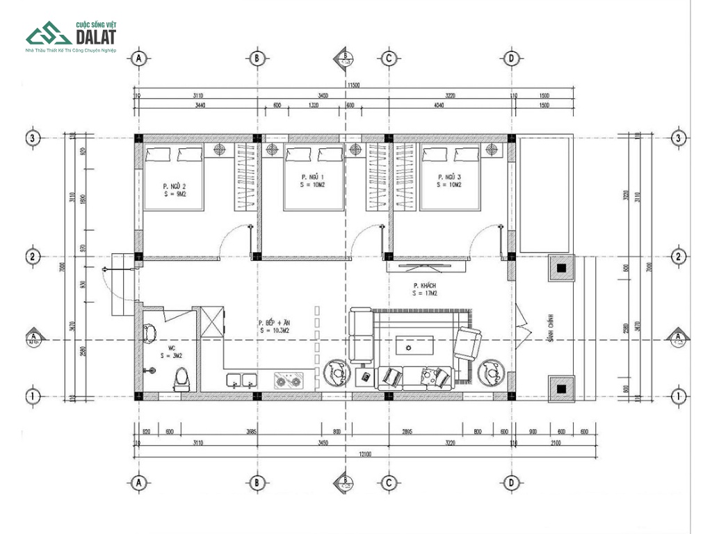
Bản vẽ nhà cấp 4 150 triệu mái Thái truyền thống
Với khoảng 150 triệu đồng, bạn có thể xây được mẫu nhà mái Thái diện tích 50 – 60m², bố trí:
- 1 – 2 phòng ngủ
- Phòng khách gọn gàng
- Khu bếp và vệ sinh tiện dụng
Ưu điểm nổi bật của mái Thái:
- Thoát nước tốt, không bị ứ đọng nước mưa
- Chống nóng hiệu quả, phù hợp với mùa hè oi bức
- Rất phù hợp với khí hậu nhiệt đới gió mùa tại Việt Nam

Bản vẽ nhà cấp 4 150 triệu mái tôn
Mái tôn nhẹ, dễ thi công, giúp giảm đáng kể thời gian và chi phí nhân công.
Tiết kiệm chi phí phần mái, từ đó bạn có thể:
- Tập trung đầu tư vào phần nội thất hoàn thiện
- Mở rộng diện tích sử dụng hoặc nâng cấp vật tư các khu vực khác
Diện tích phù hợp từ 45 – 55m², bố trí hợp lý bao gồm:
- Phòng khách thông thoáng
- 1 – 2 phòng ngủ tiện nghi
- Khu bếp và nhà vệ sinh khép kín

Bản vẽ nhà cấp 4 150 triệu mái bằng
- Cấu trúc mái bằng đơn giản, dễ thi công và tiết kiệm chi phí vật liệu đáng kể.
- Với ngân sách khoảng 150 triệu đồng, bạn có thể xây dựng ngôi nhà diện tích 40 – 50m², bố trí:
- 1 phòng khách sáng sủa
- 1 phòng ngủ thoải mái
- 1 khu bếp gọn gàng
- 1 nhà vệ sinh khép kín tiện nghi
- Ưu điểm nổi bật của mái bằng:
- Chịu lực tốt, dễ mở rộng thêm tầng nếu có nhu cầu về sau
- Thuận tiện để lắp đặt hệ thống điện mặt trời hoặc bồn nước
- Thiết kế vuông vức, hiện đại, mang lại vẻ đẹp tối giản, gọn gàng
- Phù hợp với:
- Gia đình trẻ yêu thích phong cách minimalism
- Những người muốn kiến trúc hiện đại nhưng vẫn trong tầm tài chính hợp lý

Bản vẽ nhà cấp 4 150 triệu mái lệch
- Thiết kế mái lệch hiện đại, tạo cảm giác phá cách và độc đáo hơn so với mái bằng hay mái tôn truyền thống.
- Dù hình khối có phần cầu kỳ, nhưng nếu lựa chọn vật liệu phù hợp và thi công đúng kỹ thuật, chi phí vẫn nằm trong khoảng 150 triệu đồng.
- Ưu điểm nổi bật của mái lệch:
- Tăng khả năng thoát nước nhanh vào mùa mưa
- Đón gió tốt, giúp tăng độ thông thoáng tự nhiên
- Tối ưu ánh sáng tự nhiên, giảm chi phí điện năng
- Phù hợp với khí hậu nóng ẩm tại các vùng:
- Miền Trung (thường xuyên mưa lớn, cần mái dốc thoát nước tốt)
- Miền Nam (nắng nóng quanh năm, cần thông gió hiệu quả)

Bản vẽ nhà cấp 4 150 triệu mái ngói
Phong cách truyền thống, mang lại cảm giác ấm cúng, yên bình, phù hợp với lối sống của nhiều gia đình Việt. Với diện tích 35 – 45m², bạn có thể sở hữu căn nhà có:
- Ngói lợp truyền thống
- Khung kèo bằng thép nhẹ hoặc gỗ tùy vùng miền
- Ưu điểm nổi bật của mái ngói:
- Cách nhiệt tốt, giữ cho không gian luôn mát mẻ vào mùa hè
- Giảm ồn hiệu quả khi trời mưa so với mái tôn
- Thân thiện với môi trường, bền vững theo thời gian
- Phù hợp với vùng nông thôn, nơi có khí hậu ổn định, ít mưa lớn

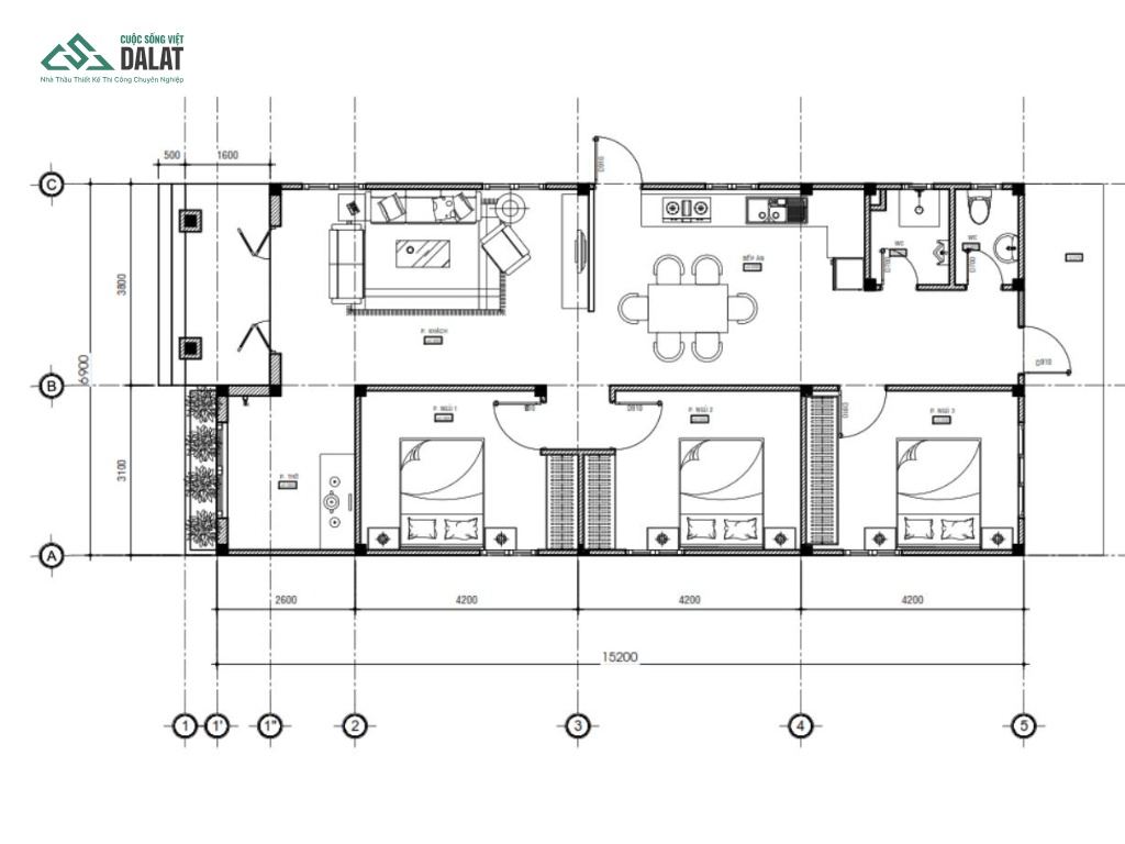
Bản vẽ nhà cấp 4 150 triệu ở nông thôn
Phù hợp với ngân sách khoảng 150 triệu đồng, mẫu nhà này được thiết kế theo kiểu:
- Mái tôn hoặc mái bằng
- Kết cấu tối giản, thi công nhanh, dễ kiểm soát chi phí
Diện tích sử dụng linh hoạt từ 40m² đến 60m², đáp ứng tốt nhu cầu sinh hoạt cho:
- Gia đình 2 – 4 người
Ưu điểm nổi bật:
- Vật liệu phổ biến, dễ tìm tại địa phương
- Thời gian thi công ngắn
- Không đòi hỏi kỹ thuật cao, thích hợp với đội thi công tại nông thôn
Bố trí không gian khoa học, gồm:
- 1 phòng khách
- 1 – 2 phòng ngủ
- Khu bếp + nhà vệ sinh khép kín
Dù chi phí thấp, không gian vẫn đảm bảo:
- Thoáng mát, hợp lý
- Đáp ứng đầy đủ công năng sử dụng hàng ngày

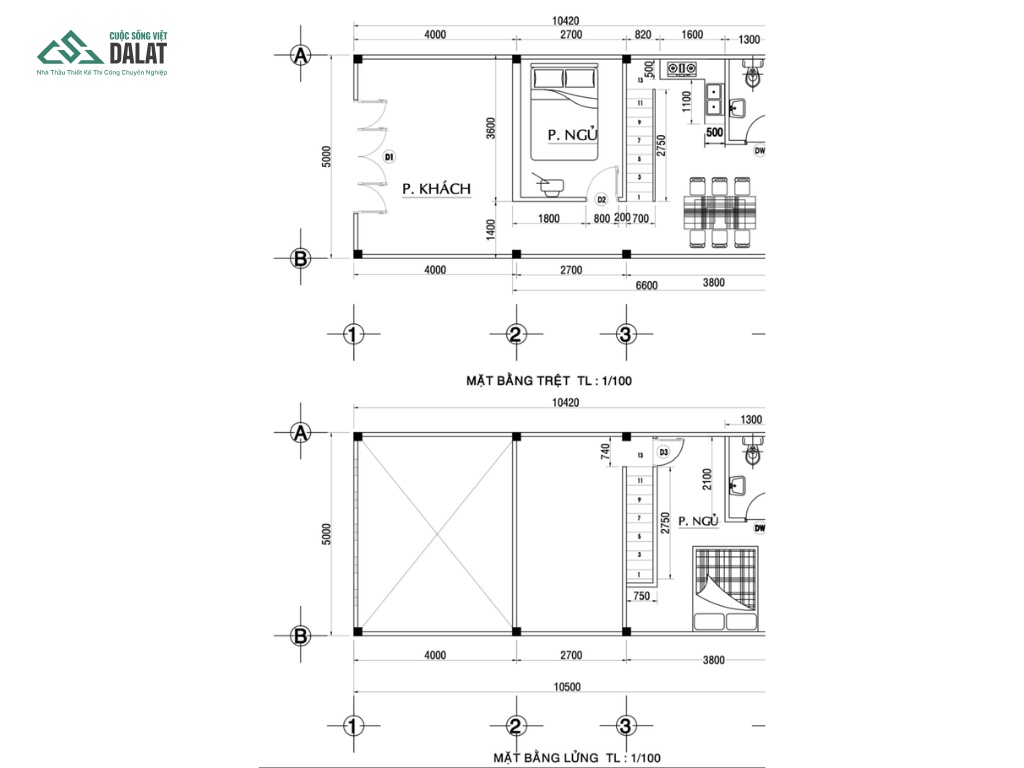
Bản vẽ nhà gác lửng cấp 4 150 triệu
Gác lửng giúp tăng diện tích sử dụng mà không cần xây thêm tầng, từ đó:
- Tiết kiệm chi phí móng và tường
- Tối ưu không gian sống cho gia đình đông người
Cách bố trí không gian phổ biến:
- Tầng trệt: phòng khách, khu bếp, nhà vệ sinh
- Gác lửng: phòng ngủ, không gian học tập hoặc làm việc

Bản vẽ nhà vườn cấp 4 150 triệu
Phù hợp với khu đất rộng tại vùng nông thôn, mẫu nhà vườn cấp 4 mang lại không gian sống:
- Trong lành, yên tĩnh
- Hài hòa với thiên nhiên
- Phù hợp với xu hướng “sống chậm – sống xanh”
Với khoảng 150 triệu đồng, gia chủ có thể xây dựng:
- Căn nhà diện tích 50 – 60m²
- Kết hợp sân vườn nhỏ trồng rau, hoa hoặc cây cảnh
- Hàng rào đơn giản bằng gạch, tre hoặc lưới thép
Thiết kế nhà thường theo kiểu mở, tối ưu ánh sáng và thông gió:
- Cửa sổ lớn, nhiều hướng đón gió trời
- Giảm phụ thuộc điện năng nhờ tận dụng ánh sáng tự nhiên
- Giúp không gian luôn mát mẻ, tiết kiệm chi phí sinh hoạt
Đối tượng phù hợp:
- Người lớn tuổi, mong muốn không gian sống yên bình, giản dị
- Những ai yêu thích lối sống mộc mạc, gần gũi với thiên nhiên
- Gia đình trẻ muốn nghỉ dưỡng, trồng cây, nuôi thú cưng

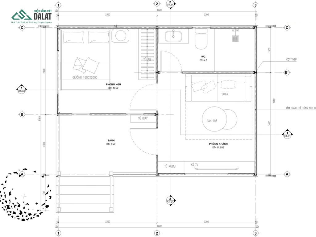
Bản vẽ nhà vườn cấp 4 150 triệu mái tôn 1 phòng ngủ 36m²
Diện tích thiết kế: 36m² (khoảng 6m x 6m hoặc 4m x 9m), phù hợp với:
- Người độc thân
- Vợ chồng trẻ mới cưới
- Gia đình nhỏ 2 người hoặc người lớn tuổi ở riêng
Kết cấu mái tôn đơn giản:
- Chi phí thấp, dễ thi công
- Thoát nước nhanh, phù hợp vùng mưa nhiều
- Kết hợp trần cách nhiệt hoặc lợp tôn lạnh 3 lớp để giảm nóng
Bố trí mặt bằng khoa học, tiết kiệm diện tích:
- 1 phòng khách kết hợp khu sinh hoạt chung
- 1 phòng ngủ riêng biệt, đảm bảo sự riêng tư
- Khu bếp nhỏ gọn, bố trí sát góc tường hoặc hình chữ L
- Nhà vệ sinh khép kín, nằm cuối nhà hoặc tách góc riêng
Ưu điểm của mẫu nhà này:
- Thi công nhanh, từ 20 – 30 ngày là có thể hoàn thiện
- Vật liệu phổ thông, dễ tìm tại địa phương
- Dễ dàng mở rộng thêm phòng về sau nếu có nhu cầu

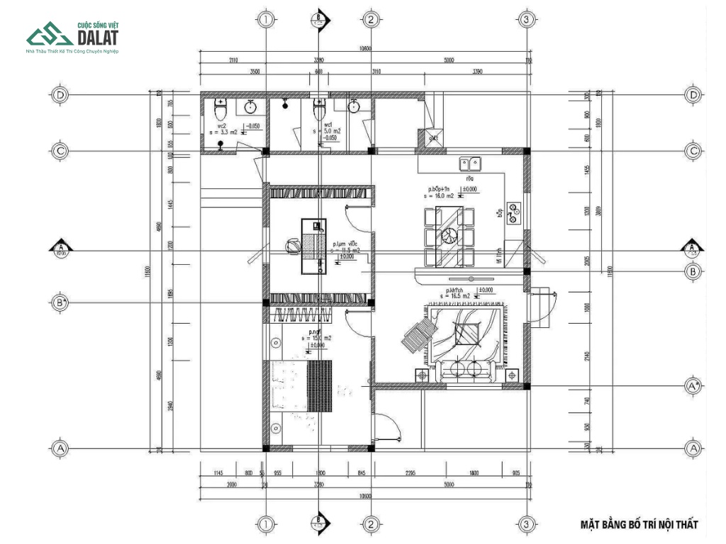
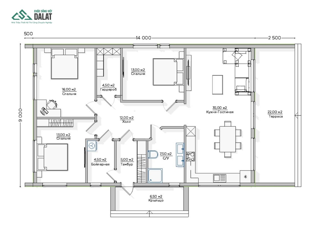
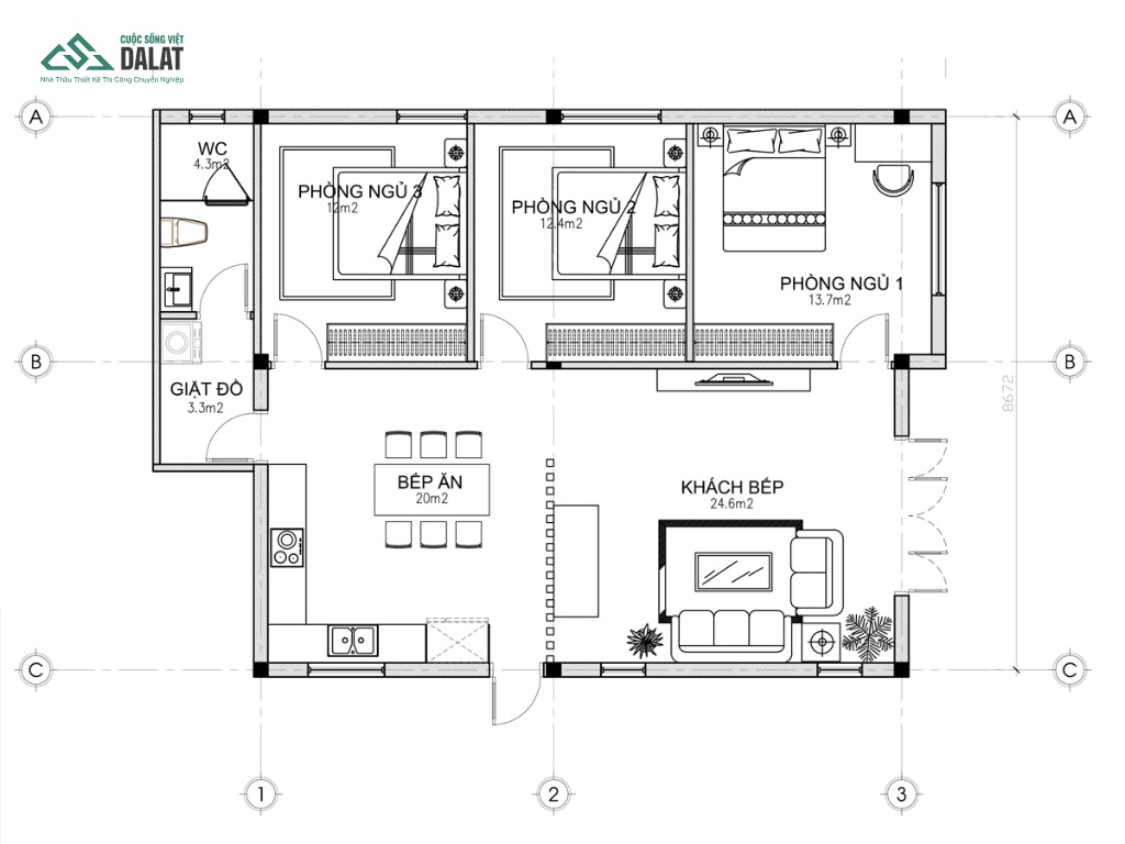
Bản vẽ nhà vườn cấp 4 150 triệu 2 phòng ngủ chữ L 45m²
Diện tích thiết kế: 45m² (khoảng 5m x 9m, kiểu chữ L lệch cạnh), phù hợp với:
- Gia đình 3 – 4 người
- Những người cần bố trí thêm phòng ngủ nhưng vẫn trong ngân sách 150 triệu
Thiết kế hình chữ L thông minh
- Tạo khoảng sân nhỏ phía trước hoặc bên hông nhà, có thể dùng làm:
- Khu để xe máy
- Sân phơi hoặc không gian thư giãn ngoài trời
- Phân tách không gian tốt, giúp các khu vực chức năng không chồng chéo
- Mặt bằng bố trí hợp lý:
- 1 phòng khách đặt ở phần chân chữ L, kết nối với lối vào chính
- 2 phòng ngủ nhỏ bố trí liền kề, đủ không gian cho giường, tủ và bàn học/làm việc
- Bếp và nhà vệ sinh khép kín nằm gọn ở góc chữ L, tối ưu diện tích sử dụng
Ưu điểm của bản vẽ chữ L:
- Tăng khả năng lấy sáng và thông gió tự nhiên
- Dễ mở thêm cửa sổ, giúp không gian luôn thoáng mát
- Có thể lắp thêm mái che ở khoảng chữ L tạo hiên nhà, rất tiện lợi

Dự toán chi phí xây dựng nhà cấp 4 trong khoảng 150 triệu
Việc nắm rõ và phân bổ ngân sách ngay từ đầu là yếu tố then chốt giúp bạn không bị vượt quá dự toán. Dưới đây là bảng chi tiết:
| Hạng mục | Dự toán (VNĐ) |
| Móng đơn + sàn bê tông | 25.000.000 |
| Khung sườn + tường xây | 40.000.000 |
| Mái tôn + xà gồ thép hộp | 20.000.000 |
| Cửa đi + cửa sổ (nhôm kính giá rẻ) | 10.000.000 |
| Hệ thống điện – nước | 10.000.000 |
| Lát gạch + sơn nước | 25.000.000 |
| Vệ sinh + phát sinh khác | 20.000.000 |
| Tổng cộng | 150.000.000 |
Bạn nên dành ra ít nhất 10% chi phí cho phần phát sinh, nhất là khi xây dựng tại vùng đất có địa chất yếu hoặc thời tiết thất thường.
Kinh nghiệm xây nhà cấp 4 tiết kiệm chi phí
Xây nhà dưới 150 triệu không dễ, nhưng nếu bạn lên kế hoạch kỹ lưỡng và tận dụng các nguồn lực sẵn có, thì hoàn toàn khả thi.
Chọn đúng thời điểm thi công
- Tránh mùa mưa để không gián đoạn tiến độ, không phát sinh chi phí phát sinh do bảo dưỡng vật tư
- Xây dựng vào thời điểm giá vật liệu ổn định, thường là đầu năm hoặc sau Tết
Tận dụng nhân công gia đình (nếu có)
- Nếu gia đình có thợ hồ, thợ điện, thợ sơn, bạn có thể tiết kiệm 20 – 30% chi phí nhân công
- Cũng giúp giám sát tốt hơn trong quá trình thi công
Mua vật liệu tại các đại lý uy tín
Chọn mua vật tư từ những cửa hàng lớn, có hợp đồng rõ ràng sẽ giúp bạn tránh tình trạng đổi chất lượng, nâng giá hoặc giao hàng thiếu.
Thêm vào đó, bạn nên:
- So sánh báo giá ít nhất 2 – 3 nơi
- Tận dụng chính sách chiết khấu theo khối lượng
- Tham khảo bảng giá vật tư xây dựng mới nhất từ các nguồn uy tín

Nhà cấp 4 giá 150 triệu có phù hợp với vùng nông thôn, ven đô không?
Câu trả lời là hoàn toàn phù hợp, thậm chí còn là lựa chọn tối ưu cho nhiều hộ gia đình.
Lý do nên chọn
- Đất rộng, giá rẻ → không cần đầu tư tầng lầu
- Nhân công địa phương sẵn có
- Vận chuyển vật tư dễ dàng hơn so với trung tâm thành phố
Xu hướng ở hiện đại tại nông thôn
- Nhiều gia đình trẻ trở về quê lập nghiệp → nhu cầu nhà ở cơ bản tăng cao
- Mô hình nhà nhỏ – vườn rộng ngày càng phổ biến
>> Tham khảo thêm các bản vẽ thiết kế nhà vườn đẹp ở Đà Lạt nếu bạn đang có nhu cầu xây nhà nghỉ dưỡng kết hợp nhà ở.
Gợi ý bản vẽ theo vùng miền
- Miền Bắc: ưu tiên mái tôn dốc, có hiên tránh mưa
- Miền Trung: nền cao, chống ngập tốt
- Miền Nam: nhà thoáng, mở rộng không gian sân vườn
Lưu ý pháp lý và kỹ thuật khi xây nhà giá rẻ
Dù chi phí thấp, bạn vẫn cần tuân thủ một số yêu cầu cơ bản:
Có cần xin giấy phép xây dựng?
- Nếu nhà xây dựng trên đất nông thôn có sổ đỏ, ngoài quy hoạch, thường không cần xin phép
- Tuy nhiên, ở khu vực quy hoạch, đất trong hẻm đô thị thì bắt buộc phải xin phép
Hãy liên hệ với chính quyền địa phương hoặc phòng quản lý đô thị để xác minh tình trạng đất trước khi xây.
Giám sát thi công chặt chẽ
- Ghi chép khối lượng vật tư hàng ngày
- Đảm bảo thi công đúng theo bản vẽ và hợp đồng
- Kiểm tra kỹ hệ thống điện – nước âm tường, tránh rò rỉ hoặc hư hỏng sau vài năm

Có nên chọn mẫu nhà cấp 4 giá 150 triệu?
Bạn nên chọn mẫu này khi:
- Cần nơi ở ổn định nhưng tiết kiệm
- Xây dựng nhà trọ, nhà tạm, nhà vườn nghỉ dưỡng
- Có quỹ đất nhỏ, ngân sách hạn chế nhưng vẫn mong muốn không gian sống riêng tư
Hãy xem bản vẽ nhà cấp 4 150 triệu như một khởi đầu thông minh cho giấc mơ an cư. Với cách phân bổ hợp lý, bạn không chỉ xây được một căn nhà để ở mà còn có thể tạo ra không gian sống thoải mái, gần gũi thiên nhiên.
Câu hỏi thường gặp (FAQs)
1. Có thể xây nhà cấp 4 150 triệu ở Đà Lạt không?
→ Có, nếu bạn tận dụng đất có sẵn, chọn kiểu nhà đơn giản và thi công vào mùa khô.
2. Nhà cấp 4 giá rẻ có bền không?
→ Bền nếu chọn vật tư chất lượng trung bình khá, có chống thấm tốt và thi công đúng kỹ thuật.
3. Có nên thuê kiến trúc sư cho nhà cấp 4 giá rẻ?
→ Nên. Chỉ cần gói thiết kế cơ bản cũng giúp bạn tối ưu diện tích và công năng rất hiệu quả.
4. Tự mua vật liệu có tiết kiệm hơn không?
→ Có, nhưng cần có người hiểu kỹ thuật đi kèm, nếu không dễ mua thiếu hoặc bị đội giá.
Kết luận
Hy vọng bài viết về bản vẽ nhà cấp 4 150 triệu trên đây đã cung cấp cho bạn những thông tin cần thiết để lên kế hoạch xây dựng căn nhà nhỏ, tiết kiệm nhưng vẫn đầy đủ tiện nghi. Nếu bạn đang tìm kiếm một bản vẽ phù hợp với nhu cầu và ngân sách, đừng ngần ngại liên hệ đội ngũ Cuộc Sống Việt Đà Lạt để được tư vấn, thiết kế và đồng hành trong từng bước xây dựng.
