Bản vẽ thiết kế homestay đóng vai trò quan trọng trong việc tạo nên dấu ấn riêng và thu hút khách du lịch, đặc biệt là với một điểm đến thơ mộng như Đà Lạt. Để cạnh tranh hiệu quả, mỗi bản vẽ cần thể hiện được cá tính, sự khác biệt và gu thẩm mỹ riêng biệt của chủ đầu tư. Trong bài viết này, Cuộc Sống Việt gợi ý đến bạn một số mẫu thiết kế homestay đẹp, nên thơ và giàu tiềm năng khai thác giúp bạn định hình rõ hơn cho không gian lưu trú mơ ước của mình.
Bản vẽ thiết kế homestay là gì?
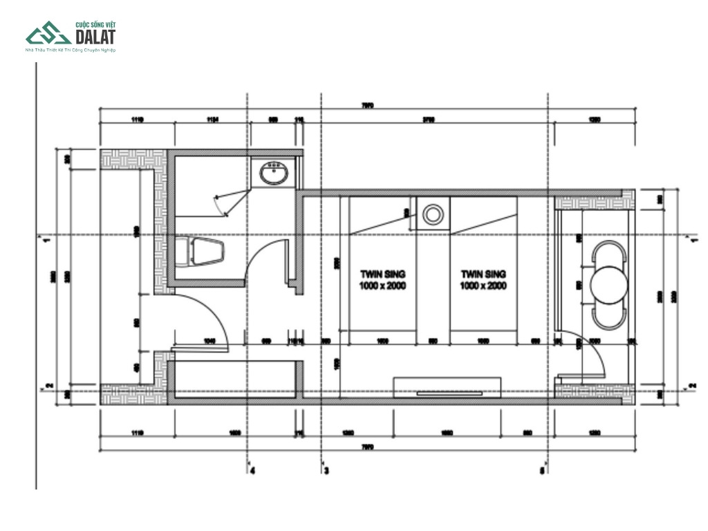
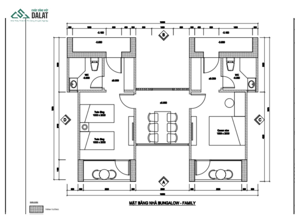
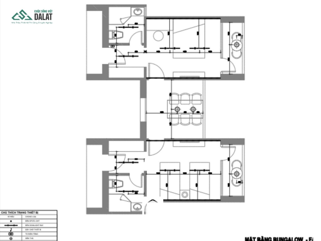
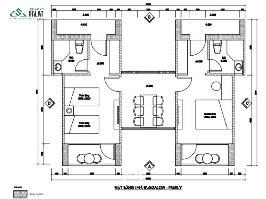
Bản vẽ thiết kế homestay là bản vẽ kiến trúc thể hiện toàn bộ không gian lưu trú được xây dựng theo mô hình nhà ở dành cho khách du lịch, ưu tiên sự gần gũi, ấm cúng và mang đậm dấu ấn bản địa. Khác với khách sạn hay nhà nghỉ, homestay chú trọng sự trải nghiệm, nên thiết kế cần đảm bảo cả yếu tố thẩm mỹ, tiện nghi và cá tính riêng. Một bản vẽ thiết kế chuẩn sẽ giúp chủ đầu tư định hình rõ phong cách, tối ưu công năng và dễ dàng triển khai thi công hiệu quả.

Tiêu chuẩn của một bản vẽ thiết kế homestay đẹp là gì?
Một bản vẽ thiết kế homestay chuyên nghiệp không chỉ thể hiện thẩm mỹ mà còn cần đảm bảo công năng, cảm xúc trải nghiệm và hiệu quả kinh doanh. Dưới đây là những tiêu chuẩn cốt lõi bạn cần lưu ý trước khi triển khai dự án:
Tối ưu hóa không gian sống và tích hợp tiện ích thông minh
Homestay cần mang lại sự thoải mái như ở nhà nhưng vẫn gần gũi với thiên nhiên. Thiết kế cần đảm bảo không gian mở, thoáng mát, đầy đủ công năng như bếp, sân BBQ, khu sinh hoạt chung, tích hợp thêm công nghệ thông minh để nâng cao trải nghiệm lưu trú.

Ưu tiên vật liệu bền và thân thiện môi trường
Các vật liệu như gỗ, tre, vải thô, gạch không nung… không chỉ bền mà còn thể hiện được tinh thần của địa phương, mang lại cảm giác gần gũi và góp phần bảo vệ môi trường. Đây là yếu tố đang được đông đảo du khách đánh giá cao.
Tạo dấu ấn từ nghệ thuật địa phương
Khi nhắc đến Đà Lạt, người ta thường nghĩ ngay đến hoa khô, tranh thêu tay hay những loại nến thơm chiết xuất từ tinh dầu thiên nhiên. Đó chính là những chất liệu đậm bản sắc địa phương mà bạn hoàn toàn có thể đưa vào không gian homestay của mình. Sự hiện diện của những chi tiết mộc mạc ấy mang đến cảm giác ấm cúng, gần gũi và giúp du khách cảm thấy ấn tượng hơn bao giờ hết.
Màu sắc và họa tiết mang bản sắc Đà Lạt
Đó cũng chính là tinh thần mà một bản vẽ thiết kế homestay đẹp nên truyền tải. Đà Lạt trong mắt du khách là sự giao hòa giữa nét hiện đại, phóng khoáng với vẻ thơ mộng, lãng mạn rất riêng. Những gam màu trầm ấm như nâu gỗ, xanh rêu hay vàng đất được phối hài hòa với họa tiết hoa cỏ cũng cần góp phần kể lại câu chuyện của vùng đất sương mù, vừa gần gũi vừa đậm chất thiên nhiên.
Ngoại thất linh hoạt cho các hoạt động ngoài trời
Các hoạt động vui chơi ăn uống ngoài trời như tiệc BBQ, buffet hoặc tắm hồ bơi thường được tổ chức nhiều nhất sân vườn rộng. Do vậy khi xây homestay Đà Lạt cần tập trung đầu tư và thi công các khu vực không gian ngoại thất để có thể mang lại sự tiện lợi, linh hoạt, thoải mái nhất cho người cư trú.

Cam kết về an toàn và tiện ích
Bên cạnh thiết kế ấn tượng, homestay cần đảm bảo các tiêu chuẩn kỹ thuật về an toàn và tiện ích. Hệ thống phòng cháy chữa cháy, cấp thoát nước, khử mùi trong bếp và nhà vệ sinh phải được tính toán kỹ lưỡng. Một không gian đẹp nhưng thiếu an toàn hoặc bất tiện trong sử dụng sẽ khó tạo trải nghiệm trọn vẹn. Sự kết hợp hài hòa giữa thẩm mỹ và công năng chính là chìa khóa để homestay ghi điểm và giữ chân du khách lâu dài.
Xu hướng bản vẽ thiết kế homestay hiện nay như thế nào?
Sự đa dạng trong phong cách thiết kế giúp homestay Đà Lạt không bị trùng lặp và nhàm chán. Chủ đầu tư nếu biết cách khai thác bản sắc riêng qua bản vẽ thiết kế homestay sẽ dễ dàng tạo ra dấu ấn và tăng tỉ lệ đặt phòng.
Bản thiết kế homestay phong cách Vintage
Phong cách Vintage rất phù hợp với vẻ đẹp thơ mộng của Đà Lạt. Nội thất thường sử dụng chất liệu gỗ, đá mộc mạc với các tông màu như đỏ rượu, vàng đất, xanh olive, nâu trầm,… tạo cảm giác ấm cúng và hoài niệm. Đây là lựa chọn lý tưởng cho các cặp đôi yêu thích không gian xưa cũ, nhẹ nhàng như trở về thời “ông bà anh”.

Bản thiết kế homestay đẹp nhà ống
Thiết kế homestay nhà ống là kiểu thiết kế tận dụng mặt bằng có chiều ngang hẹp, chiều sâu dài, phổ biến tại các khu vực đô thị hoặc đất nền hạn chế bề ngang. Homestay dạng nhà ống thường được bố trí theo chiều dọc, chia tầng rõ ràng, kết hợp giếng trời hoặc sân sau để đảm bảo ánh sáng và thông gió tự nhiên. Phong cách này phù hợp với những khu đất nhỏ nhưng vẫn đảm bảo tiện nghi, thẩm mỹ và công năng cho khách lưu trú.

Bản thiết kế homestay đẹp nhà gỗ
Phong cách nhà gỗ mang đến cảm giác mộc mạc, ấm áp và gần gũi với thiên nhiên, rất phù hợp với khí hậu se lạnh của Đà Lạt. Vật liệu chủ yếu là gỗ tự nhiên, kết hợp cùng ánh đèn vàng tạo nên không gian thư giãn lý tưởng. Đây là lựa chọn được nhiều cặp đôi và gia đình yêu thích khi tìm kiếm sự bình yên giữa núi rừng.

Bản vẽ thiết kế homestay phong cách nhà kính
Thiết kế nhà kính là một trong những bản vẽ homestay ấn tượng được ưa chuộng hiện nay. Với hệ thống cửa kính lớn, không gian bên trong và bên ngoài gần như liền mạch. Du khách có thể ngắm nhìn rừng thông, sương sớm ngay từ giường ngủ ngay giữa lòng Đà Lạt.

Bản thiết kế homestay đẹp phong cách du mục
Phong cách du mục (boho, glamping) đang tạo nên “cơn sốt” nhờ sự tự do, phóng khoáng trong cách bày trí. Với một chiếc lều vải tam giác, vài món đồ nội thất gỗ đơn giản, không gian homestay đã đủ mang đến trải nghiệm sống giữa thiên nhiên đúng nghĩa, thu hút giới trẻ thích khám phá và sống chậm, sống “chill”.

Bản vẽ thiết kế homestay phong cách container
Phong cách thiết kế homestay bằng container mang đến một làn gió mới cho kiến trúc lưu trú hiện đại. Thay vì xây dựng theo kiểu truyền thống, việc tận dụng các thùng container cũ để cải tạo thành không gian nghỉ dưỡng đã và đang trở thành xu hướng tại nhiều quốc gia, trong đó có Việt Nam. Ưu điểm nổi bật của homestay dạng container là khả năng thích ứng với nhiều địa hình khác nhau, đặc biệt phù hợp với những vùng đồi núi như Đà Lạt.

Có nên thuê đơn vị chuyên nghiệp làm bản vẽ thiết kế homestay đẹp?
Việc tự lên ý tưởng và vẽ bản thiết kế homestay có thể giúp bạn tiết kiệm chi phí ban đầu và thể hiện cá tính riêng. Tuy nhiên, nếu không có chuyên môn về kiến trúc, kết cấu hay công năng sử dụng, bạn dễ gặp phải các rủi ro như thiết kế thiếu tính thực tế, bố trí không hợp lý, khó thi công, hoặc không thu hút được khách du lịch.
Thay vào đó, lựa chọn một đơn vị thiết kế homestay giá rẻ, chất lượng cao như Cuộc Sống Việt là quyết định thông minh và lâu dài. Với nhiều năm kinh nghiệm trong lĩnh vực thiết kế thi công homestay tại Đà Lạt, Cuộc Sống Việt không chỉ mang đến những bản vẽ hoàn chỉnh, tối ưu hóa công năng và chi phí thiết kế homestay, mà còn đảm bảo sự khác biệt và tính thẩm mỹ cao trong từng chi tiết.
Đội ngũ kiến trúc sư, kỹ sư của chúng tôi luôn tận tâm, sáng tạo và am hiểu văn hóa bản địa để tạo ra những công trình phù hợp với ngân sách, thị hiếu khách hàng mục tiêu và đặc trưng vùng miền. Không chỉ thiết kế đẹp, chúng tôi còn giúp bạn định hướng công trình theo đúng mục tiêu kinh doanh, góp phần gia tăng trải nghiệm du khách, thúc đẩy phát triển du lịch và nâng tầm giá trị bất động sản.

Bằng tâm huyết và chuyên môn vững vàng, Cuộc Sống Việt không ngừng nỗ lực để đồng hành và kiến tạo những công trình mang giá trị bền vững cho khách hàng và cộng đồng. Liên hệ ngay hôm nay:
- Fanpage: Cuộc Sống Việt Đà Lạt
- Hotline: 0877.777.999
- Email: cuocsongvietdalat@gmail.com
- Website: https://cuocsongviet.vn/
Một số lưu ý khi thực hiện bản vẽ thiết kế homestay đẹp
Để tạo ra một không gian mang dấu ấn riêng, đủ sức níu chân du khách giữa muôn vàn lựa chọn, bản vẽ thiết kế cần được đầu tư kỹ lưỡng từ ý tưởng đến công năng. Dưới đây là một số lưu ý quan trọng giúp bạn thực hiện bản vẽ homestay hiệu quả và ấn tượng.
Lựa chọn đơn vị chuyên thiết kế homestay uy tín
Một bản vẽ thiết kế homestay ấn tượng không thể thiếu bàn tay của đội ngũ chuyên nghiệp, am hiểu cả yếu tố thẩm mỹ lẫn kỹ thuật. Việc hợp tác với đơn vị thiết kế uy tín không chỉ giúp bạn định hình phong cách rõ ràng mà còn đảm bảo tối ưu hóa công năng sử dụng, tiết kiệm chi phí thi công và tránh những sai sót không đáng có.
Tối ưu diện tích và công năng sử dụng
Dù homestay có diện tích nhỏ hay lớn, việc bố trí công năng hợp lý là yếu tố then chốt. Cần đảm bảo sự thuận tiện trong di chuyển, không gian thông thoáng, tận dụng tốt ánh sáng và gió tự nhiên. Mỗi mét vuông cần được tận dụng hiệu quả để tạo trải nghiệm thoải mái cho khách lưu trú.

Tạo điểm nhấn thiết kế ấn tượng
Khách hàng thường chọn homestay vì sự khác biệt và cảm xúc. Vì vậy, bản vẽ nên có ý tưởng chủ đạo độc đáo, có thể là phong cách boho, vintage, rustic, tropical hay tối giản hiện đại… Kết hợp hài hòa giữa kiến trúc, nội thất và cảnh quan để tạo dấu ấn riêng.
Chú trọng không gian sống xanh và thư giãn
Một khoảng sân vườn nhỏ, ban công thoáng mát, hoặc góc đọc sách gần cửa sổ có thể là điểm cộng rất lớn. Bản vẽ nên thể hiện rõ những khu vực này, đảm bảo homestay không chỉ là nơi lưu trú mà còn là nơi thư giãn, “chữa lành”.
Tính toán kỹ lưỡng chi phí và vật liệu xây dựng
Khi lên bản vẽ thiết kế, cần bám sát ngân sách dự kiến. Bạn nên chọn vật liệu phù hợp với khí hậu địa phương, dễ bảo trì và có tính thẩm mỹ cao. Tránh thiết kế quá cầu kỳ gây đội chi phí hoặc khó thi công.
Kết luận
Bản vẽ thiết kế homestay là yếu tố then chốt quyết định đến thẩm mỹ, công năng và hiệu quả kinh doanh của công trình. Nếu bạn đang ấp ủ kế hoạch xây dựng homestay Đà Lạt, đừng ngần ngại lựa chọn dịch vụ xây nhà trọn gói Đà Lạt chuyên nghiệp từ Cuộc Sống Việt. Hãy liên hệ với chúng tôi ngay qua hotline 0877.777.999 để được tư vấn ý tưởng và nhận báo giá thiết kế homestay giá rẻ chi tiết nhé!
