Bản vẽ thiết kế nhà vườn đẹp là bước quan trọng hàng đầu, giúp đảm bảo sự hài hòa giữa thẩm mỹ, kỹ thuật và công năng sử dụng cho căn nhà. Để đạt được điều đó, đơn vị thiết kế cần nắm vững các nguyên tắc bố cục, tỷ lệ, hệ thống thoát nước và phân khu chức năng. Trong bài viết này, Cuộc Sống Việt sẽ giới thiệu đến bạn một số mẫu bản vẽ nhà vườn đẹp, giúp bạn có thêm ý tưởng để hiện thực hóa không gian sống xanh, đẹp và tiện nghi như mong muốn.
Bản vẽ thiết kế nhà vườn đẹp là gì?
Bản vẽ thiết kế là tài liệu kỹ thuật thể hiện ý tưởng và thông số của một công trình dưới dạng hình học và ký hiệu. Công cụ này giúp đảm bảo quá trình thi công đúng ý tưởng và tiết kiệm chi phí.
Bản vẽ nhà sân vườn mô tả chi tiết bố cục, kích thước và cách bố trí các yếu tố như lối đi, cây xanh, hồ nước, bồn hoa,… Dựa trên khảo sát thực tế, kiến trúc sư hoặc nhà thiết kế cảnh quan sẽ lên phương án phù hợp với nhu cầu sử dụng, địa hình và ngân sách của chủ đầu tư.
Một hồ sơ thiết kế nhà vườn hoàn chỉnh thường bao gồm:
- Bản vẽ tổng mặt bằng nhà vườn: Thể hiện tổng thể bố cục và vị trí các hạng mục chính.
- Bản vẽ chi tiết từng hạng mục: Mô tả cụ thể cấu tạo các phần như lối đi, tiểu cảnh, hàng rào, bồn hoa…
- Bản vẽ kỹ thuật phụ trợ: Bao gồm hệ thống cấp thoát nước, tưới tự động, đèn chiếu sáng ngoài trời,…

Có nên làm bản vẽ thiết kế nhà vườn đẹp không?
Câu trả lời là nên. Một mô hình nhà sân vườn đẹp không chỉ giúp hiện thực hóa ý tưởng một cách trực quan, mà còn là công cụ quan trọng giúp bạn tiết kiệm thời gian, chi phí và hạn chế tối đa sai sót trong quá trình thi công.
Truyền đạt ý tưởng trực quan và rõ ràng
Thông qua bản vẽ phối cảnh và mặt bằng, bạn dễ dàng hình dung tổng thể không gian sân vườn sau khi hoàn thiện. Đây cũng là cơ sở để hai bên cùng chỉnh sửa, thống nhất phương án tối ưu nhất trước khi bắt đầu xây dựng.
Dự trù kinh phí và thời gian hợp lý
Bản vẽ giúp bóc tách khối lượng thi công, từ đó ước tính chi phí vật tư, nhân công và thời gian triển khai. Điều này giúp bạn kiểm soát ngân sách và hạn chế phát sinh ngoài ý muốn.
Cơ sở kỹ thuật cho quá trình thi công
Bản vẽ thiết kế nhà vườn đẹp thể hiện chi tiết về kích thước, cao độ, vật liệu, hệ thống thoát nước, chiếu sáng, tưới tiêu,… giúp đội thi công bám sát tiêu chuẩn, tránh lỗi sai và rút ngắn thời gian hoàn thiện.

Tối ưu công năng và tính thẩm mỹ cho không gian
Một bản vẽ bài bản không chỉ đẹp mà còn hợp lý từ lối đi, bồn hoa đến khu BBQ hay góc thưởng trà. Tất cả đều được tính toán để đón gió, lấy sáng và tạo sự kết nối hài hòa giữa các khu vực.
Tài liệu phục vụ bảo trì và cải tạo về sau
Khi cần nâng cấp hay sửa chữa, bạn chỉ cần xem lại bản vẽ để biết hệ thống kỹ thuật nằm ở đâu, kết cấu như thế nào để tránh tình trạng “đập đi làm lại” tốn kém.
Trải nghiệm mô phỏng hướng đến tổ ấm chất lượng
Bản vẽ thiết kế sân vườn giúp khách hàng hình dung trước không gian sống trong tương lai. Một khu vườn đẹp, xanh mát sẽ trở thành nơi lý tưởng cho cả gia đình thư giãn và tận hưởng cuộc sống. Đây cũng là không gian phù hợp để tổ chức tiệc ngoài trời và các hoạt động giải trí cùng người thân, bạn bè, đồng nghiệp. Các khu vực như góc thưởng trà, quầy bar hay khu BBQ sẽ được bố trí hài hòa theo nhu cầu sử dụng.

Các yếu tố cần có trong bản vẽ thiết kế nhà vườn đẹp
Một bản vẽ thiết kế nhà vườn chuyên nghiệp không chỉ thể hiện vẻ đẹp cảnh quan mà còn đảm bảo sự tiện nghi, khoa học và hòa hợp với thiên nhiên. Dưới đây là những yếu tố quan trọng cần được thể hiện rõ trong bản vẽ:
Quy hoạch không gian chức năng
Bản vẽ cần phân chia hợp lý các khu vực: sân, vườn, tiểu cảnh, không gian nghỉ ngơi,… theo thói quen sinh hoạt và diện tích thực tế. Sự liên kết mạch lạc giữa các khu vực giúp sân vườn vận hành hiệu quả và dễ sử dụng.
Hệ thống giao thông nội bộ và lối đi bộ
Lối đi là xương sống kết nối các chức năng trong vườn. Việc bố trí hệ thống lối đi cần logic, thuận tiện và tạo điểm nhấn thị giác, đồng thời dẫn hướng người sử dụng khám phá không gian một cách tự nhiên.
Bố trí thảm thực vật và cây xanh
Bản vẽ thiết kế nhà vườn đẹp cần thể hiện chủng loại cây, mật độ và vị trí trồng phù hợp khí hậu và mục đích sử dụng. Cần phối hợp linh hoạt giữa cây bóng mát, cây bụi, hoa và cỏ để tạo tầng bậc sinh động, vừa đẹp vừa dễ chăm sóc.

Hệ thống chiếu sáng cảnh quan
Ánh sáng giúp sân vườn trở nên lung linh vào ban đêm và đảm bảo an toàn. Đèn nên được bố trí tại các lối đi, khu nghỉ ngơi, hồ nước,… theo nguyên tắc thẩm mỹ và công năng.
Hệ thống tưới tiêu và thoát nước
Bản vẽ cũng cần tích hợp hệ thống tưới tự động, thoát nước mưa và cấp nước kỹ thuật để đảm bảo khu vườn vận hành bền vững, giảm công chăm sóc và giữ cho không gian luôn sạch sẽ, xanh tốt quanh năm.
Top những bản vẽ thiết kế nhà vườn đẹp ấn tượng nhất năm 2025
Cuộc Sống Việt xin giới thiệu đến bạn các mẫu bản vẽ thiết kế nhà vườn đẹp được yêu thích nhất năm 2025. Mỗi mẫu đều được xây dựng với đầy đủ yếu tố thẩm mỹ, công năng và tính khả thi cao, mang lại nguồn cảm hứng cho những ai đang tìm kiếm một không gian sống xanh, tiện nghi và đậm chất cá nhân.
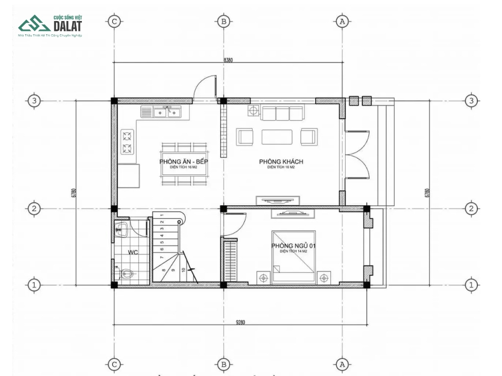
Bản vẽ nhà vườn cấp 4
Bản vẽ thiết kế nhà vườn cấp 4 là lựa chọn lý tưởng cho gia đình yêu thích sự đơn giản, gần gũi và dễ thi công. Thiết kế kiến trúc nhà vườn có thể linh hoạt theo phong cách hiện đại, cổ điển hay đồng quê, kết hợp hài hòa với sân vườn để tạo nên tổng thể nhẹ nhàng, thư thái. Ưu điểm là tiết kiệm chi phí, phù hợp với đa dạng diện tích đất, dễ cá nhân hóa theo sở thích.

Bản vẽ nhà vườn mái Nhật
Kiểu nhà 2 tầng mái Nhật mang lại cảm giác thanh thoát, hiện đại và gần gũi với thiên nhiên. Mái dốc nhẹ, ban công rộng, sân vườn thoáng đãng giúp ngôi nhà trở thành không gian nghỉ dưỡng lý tưởng. Các chi tiết trang trí như cột trụ, phù điêu và lan can sắt hoa văn tạo điểm nhấn sang trọng.

Bản vẽ thiết kế nhà vườn đẹp mái Thái
Mái Thái với độ dốc cao và kiểu dáng đối xứng giúp tôn lên vẻ bề thế và mát mẻ cho tổng thể công trình. Nhà vườn mái Thái phù hợp với cả vùng quê lẫn khu đô thị có diện tích đất lớn. Thiết kế hài hòa giữa hiện đại và truyền thống, tạo cảm giác gần gũi, dễ sống.

Bản vẽ nhà vườn 1 tầng
Nhà vườn 1 tầng đậm chất quê hương và yên bình, thường gợi nhớ không gian sống thân thuộc, nhẹ nhàng. Thiết kế này phù hợp cho gia đình có người lớn tuổi hoặc mong muốn không gian sinh hoạt liền mạch, không cầu kỳ về kết cấu nhưng vẫn đảm bảo tiện nghi.

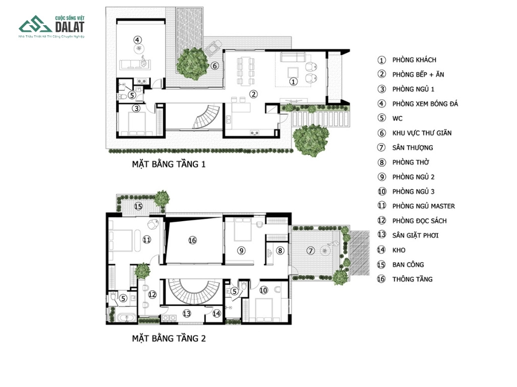
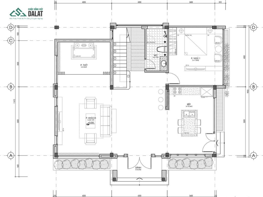
Bản vẽ nhà vườn 2 tầng
Dành cho những khu đất có diện tích lớn, mẫu nhà vườn 2 tầng mang đến không gian sống rộng rãi, có thể tách biệt các khu vực chức năng rõ ràng. Phù hợp với gia đình đông người, hoặc muốn kết hợp giữa nhà ở và không gian tiếp khách, làm việc, thư giãn ngoài trời.

Bản vẽ nhà vườn tân cổ điển
Với những chi tiết như mái vòm, phào chỉ, cột trụ… nhà vườn tân cổ điển thể hiện sự tinh tế, sang trọng. Thiết kế này mang đến vẻ đẹp bền vững theo thời gian, đồng thời vẫn giữ được sự kết nối chặt chẽ với thiên nhiên nhờ khoảng sân vườn rộng mở.

Bản vẽ nhà vườn mái xéo
Thiết kế mái xéo phù hợp với người yêu thích phong cách hiện đại, tối giản và trẻ trung. Ngôi nhà tận dụng cửa kính lớn, không gian mở để đón ánh sáng tự nhiên và mở rộng tầm nhìn ra khu vườn. Mái xéo không chỉ là điểm nhấn thẩm mỹ mà còn giúp điều hòa nhiệt độ, chống nóng hiệu quả.

Nên tự thiết kế nhà vườn hay thuê công ty thiết kế chuyên nghiệp?
Thiết kế nhà vườn không chỉ đơn thuần là dựng nên một ngôi nhà giữa vườn cây. Đây là bài toán tổng thể về bố cục, thẩm mỹ, công năng và kỹ thuật. Dù bạn có kinh nghiệm nhất định, việc tham khảo ý kiến từ kiến trúc sư cảnh quan chuyên nghiệp là điều nên làm để tránh những sai lầm khó sửa khi thi công thực tế.
Nếu bạn chưa thực sự am hiểu sâu về cảnh quan hoặc muốn tiết kiệm thời gian, công sức và chi phí phát sinh, việc thuê một công ty thiết kế nhà vườn uy tín là giải pháp an toàn và hiệu quả nhất.
Một trong những đơn vị có chuyên môn cao về làm bản vẽ thiết kế nhà vườn đẹp không thể bỏ qua cái tên Cuộc Sống Việt. Đây chính là lựa chọn lý tưởng nếu bạn đang tìm kiếm một đối tác giàu kinh nghiệm, tư duy thẩm mỹ tốt và thực sự am hiểu kiến trúc sân vườn. Với hơn 10 năm trong lĩnh vực thiết kế và thi công cảnh quan, công ty đã đồng hành cùng hàng trăm khách hàng trong việc kiến tạo bản vẽ biệt thự nhà vườn, nhà vườn nghỉ dưỡng và các công trình cảnh quan lớn nhỏ trên khắp cả nước.

Truy cập ngay Cuộc Sống Việt để tham khảo thêm một số dự án thiết kế và thi công chúng tôi đã thực hiện. Nếu quý khách có nhu cầu đừng quên liên hệ ngay qua hotline 0877.777.999 để đội ngũ nhân viên có thể tư vấn chi tiết và sớm nhất!
Làm bản vẽ thiết kế nhà vườn đẹp cần chú ý điều gì?
Để có một bản vẽ nhà vườn đẹp, dễ thi công và sát với nhu cầu thực tế, người thiết kế cần lưu ý các yếu tố sau:
Đảm bảo tính khả thi trong thi công thực tế
Bản vẽ cần dựa trên khảo sát thực tế: địa hình, khí hậu, chất đất, ánh sáng,… để chọn giải pháp bố trí, vật liệu phù hợp. Thông số kỹ thuật phải rõ ràng, tránh gây khó khăn cho đội thi công.
Cân đối yếu tố thẩm mỹ và công năng sử dụng
Sân vườn không chỉ để ngắm mà còn phục vụ đi lại, thư giãn, giải trí. Thiết kế cần đặt con người làm trung tâm, đảm bảo sự tiện nghi trong sử dụng và cảm giác thoải mái hàng ngày.
Vị trí xây dựng phù hợp
Bạn nên chọn khu đất có không gian rộng, thoáng đãng và gần gũi với thiên nhiên. Vị trí cần phù hợp với phong cách thiết kế nhà vườn mong muốn, thuận lợi cho việc đón gió, lấy sáng và bố trí cảnh quan.
Bố trí mặt bằng khoa học
Kiến trúc sư cần phân chia các phòng chức năng hợp lý để tối ưu diện tích sử dụng. Mặt bằng nên được thiết kế thuận tiện cho di chuyển, sinh hoạt và kết nối hài hòa với không gian sân vườn.
Thiết kế ngoại thất
Mặt tiền nhà vườn là điểm nhấn quan trọng nên bạn cần lưu ý lựa chọn màu sắc, chất liệu và chi tiết trang trí sao cho phù hợp với tổng thể cảnh quan, tạo cảm giác gần gũi và thẩm mỹ.
Dự trù chi phí và vật liệu thi công ngay từ giai đoạn bản vẽ
Thiết kế phải phù hợp ngân sách. Tránh đưa vào vật liệu quá cao cấp hoặc chi tiết phức tạp vượt khả năng đầu tư. Việc tính toán chi phí sớm giúp chủ nhà dễ kiểm soát tổng ngân sách.
Tuân thủ tiêu chuẩn kỹ thuật và quy định xây dựng hiện nay
Bản vẽ cần đảm bảo đúng quy chuẩn xây dựng, tiêu chuẩn an toàn và các quy định hiện hành. Đặc biệt nếu xây trong khu dân cư, resort hay khu vực có quản lý chặt, cần đảm bảo hồ sơ dễ dàng được cấp phép.

Kết luận
Nhà vườn luôn là lựa chọn lý tưởng dành cho những ai yêu thích không gian sống xanh, rộng rãi và chan hòa cùng thiên nhiên. Với các bản vẽ thiết kế nhà vườn đẹp, tối ưu công năng mà Cuộc Sống Việt vừa giới thiệu, chúng tôi hy vọng bạn đã có thêm nhiều ý tưởng và tìm thấy mẫu thiết kế phù hợp với phong cách sống của gia đình mình.
