Cuộc Sống Việt Đà Lạt hân hạnh giới thiệu hồ sơ thiết kế Villa Cẩm Thủy, công trình biệt thự mái Nhật được hình thành từ niềm tri ân và sự kết nối đặc biệt giữa người thiết kế và người truyền cảm hứng là Thầy Hùng, người thầy gắn bó và lan tỏa tình yêu với bộ môn Tennis.
Trải qua hơn 5 năm đồng hành, chúng tôi thấu hiểu được mong muốn của Thầy: một ngôi nhà không chỉ để ở, mà còn là nơi để kết nối, hội tụ gia đình, gìn giữ những giá trị tinh thần lâu dài.
Thông tin tổng quan hồ sơ thiết kế Villa Cẩm Thủy
- Tên công trình: Villa Cẩm Thủy – Ngôi nhà của Thầy
- Vị trí: Cẩm Thủy – Đà Lạt
- Loại hình: Biệt thự nghỉ dưỡng kết hợp nhà ở
- Phong cách thiết kế: Biệt thự mái Nhật
- Đơn vị thiết kế: Cuộc Sống Việt – Architecture & Interior
- Hạng mục: Hồ sơ thiết kế kiến trúc, phối cảnh 3D, mặt bằng công năng


Câu chuyện phía sau một ngôi nhà
Trong quá trình thực hiện hồ sơ thiết kế Villa Cẩm Thủy, chúng tôi không chỉ làm việc với bản vẽ, thông số kỹ thuật hay hình khối kiến trúc, mà còn đồng hành với một câu chuyện đầy cảm xúc.


Ngôi nhà được Thầy đặt tên là “Ngôi nhà của Thầy”, như một lời nhắn nhủ nhẹ nhàng về nơi trở về, nơi ba anh em trong gia đình có thể tụ họp, chia sẻ và gắn kết như thuở ban đầu.
Đặc biệt, 3 đỉnh mái với 3 cao độ khác nhau được kiến trúc sư Hải của Cuộc Sống Việt thể hiện đầy tinh tế – tượng trưng cho ba cá tính riêng biệt nhưng luôn hướng về một điểm tựa chung. Đó là sự gắn kết của gia đình – trụ cột của mọi giá trị bền vững.
Phong cách kiến trúc: Mái Nhật tinh tế và đầy chiều sâu
Vì sao chọn mái Nhật?
Biệt thự mái Nhật là một trong những phong cách được yêu thích nhất hiện nay nhờ sự kết hợp hài hòa giữa kiến trúc truyền thống châu Á và tinh thần hiện đại.
Đối với Villa Cẩm Thủy, chúng tôi lựa chọn phong cách này vì:
- Tỷ lệ kiến trúc cân đối, tạo cảm giác nhẹ nhàng, thoáng đãng.
- Độ dốc vừa phải, giúp chống nóng và thoát nước hiệu quả – phù hợp khí hậu Đà Lạt.
- Đường nét đơn giản, không cầu kỳ nhưng vẫn thể hiện vẻ sang trọng, tinh tế.
- Không gian mở linh hoạt, tạo sự kết nối giữa các khu vực sinh hoạt, đặc biệt trong những buổi sum họp gia đình.


Giải pháp thiết kế của Cuộc Sống Việt
1. Kết nối không gian – đề cao sự gắn bó
Ngôi nhà được thiết kế với khoảng sân trung tâm – nơi tổ chức các hoạt động ngoài trời, bữa tiệc gia đình hoặc đơn giản là buổi trà chiều yên ả. Các phòng chức năng đều hướng về không gian này để tăng tính kết nối và giao tiếp.
2. Tối ưu công năng – tiện nghi trong từng trải nghiệm
Mỗi khu vực đều được nghiên cứu kỹ lưỡng từ hướng nắng, hướng gió, thói quen sinh hoạt đến mức độ riêng tư cần thiết. Hồ sơ thiết kế bao gồm đầy đủ:
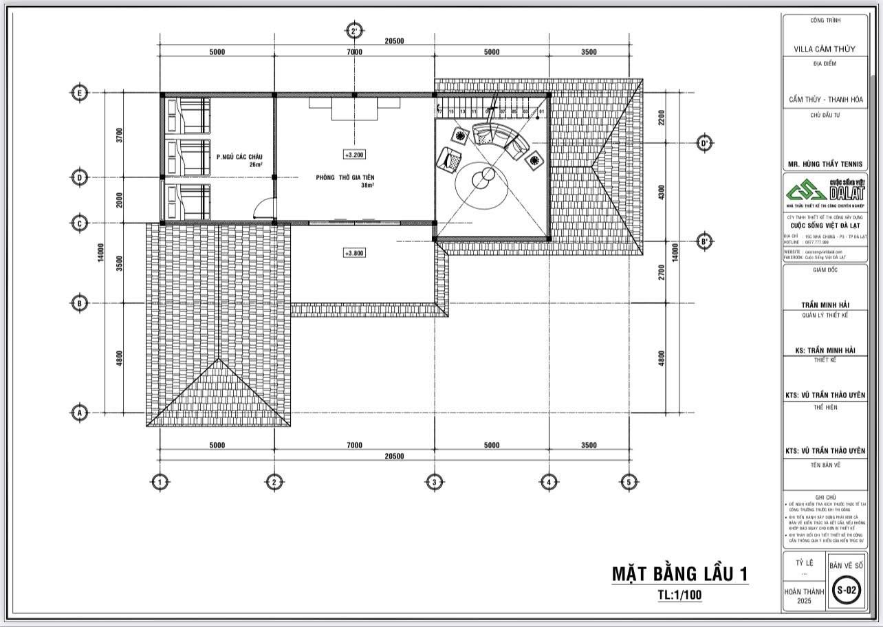
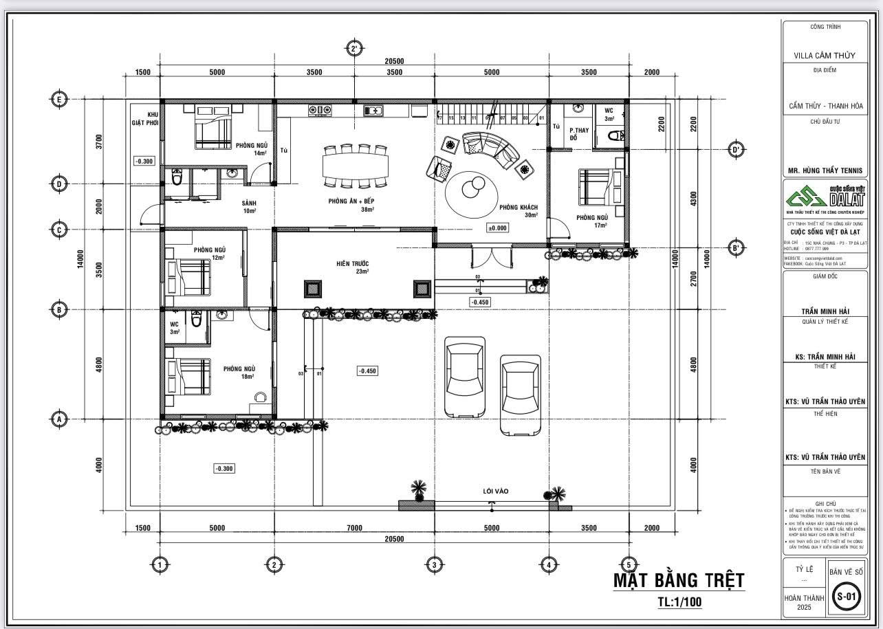
- Mặt bằng chi tiết từng tầng
- Mô hình phối cảnh 3D tổng thể và cận cảnh
- Thuyết minh kiến trúc và chất liệu đề xuất
- Phương án xử lý mái, thoát nước, chống thấm





Hồ sơ thiết kế không chỉ là bản vẽ mà còn là một câu chuyện
Chúng tôi tin rằng, một hồ sơ thiết kế chất lượng không chỉ mang lại giải pháp thẩm mỹ – công năng tối ưu, mà còn cần truyền tải được cảm xúc, thông điệp và câu chuyện riêng của gia chủ. Thông qua hồ sơ thiết kế Villa Cẩm Thủy, mỗi đường nét trong thiết kế đều là sự thấu hiểu, biết ơn và trân trọng những giá trị gắn kết gia đình.
Nếu bạn đang tìm kiếm một đối tác thiết kế – thi công chuyên nghiệp, thấu hiểu và luôn đồng hành từ ý tưởng đến thực tế, Cuộc Sống Việt chính là lựa chọn đáng tin cậy. Chúng tôi sẵn sàng đồng hành cùng bạn trong các hạng mục như:
- Thiết kế kiến trúc biệt thự, villa cá nhân hóa theo nhu cầu
- Tư vấn và triển khai xây nhà trọn gói Đà Lạt và khu vực lân cận
- Thiết kế nội thất, kiến tạo không gian sống mang tính kết nối, tối ưu công năng và thẩm mỹ
- Sửa nhà Đà Lạt, cải tạo nhà, tư vấn cải tạo – mở rộng công trình hiện hữu
Hãy để Cuộc Sống Việt lắng nghe câu chuyện của bạn và cùng kiến tạo một không gian xứng đáng để trở về nhé!
📍 Văn phòng Cuộc Sống Việt: 15C Nhà Chung, TP. Đà Lạt
📞 Hotline tư vấn: 0877.777.999
🌐 Website: https://cuocsongviet.vn/
