Mẫu nhà gác lửng 500 triệu hiện đang trở thành xu hướng được nhiều gia đình trẻ, vợ chồng mới cưới hoặc hộ gia đình có tài chính hạn chế lựa chọn. Với chi phí vừa tầm, những mẫu thiết kế này không chỉ đảm bảo công năng sử dụng mà còn mang đến tính thẩm mỹ, hiện đại và sự tối ưu về không gian. Từ nhà gác lửng 3 phòng ngủ, 4 phòng ngủ cho đến các mẫu nhà cấp 4 gác lửng 5×15, tất cả đều có thể triển khai trong mức đầu tư khoảng 500 triệu.
Trong bài viết này, Cuộc Sống Việt sẽ phân tích chi tiết ưu điểm, các mẫu thiết kế phổ biến, bản vẽ minh họa cũng như kinh nghiệm thi công thực tế, giúp bạn dễ dàng lựa chọn được mẫu nhà phù hợp nhất với nhu cầu và tài chính của gia đình.
Tại sao nên chọn mẫu nhà gác lửng 500 triệu?
Ưu điểm nổi bật của nhà gác lửng
- Tối ưu diện tích: Gác lửng giúp tận dụng không gian chiều cao, mở rộng công năng mà không cần thêm diện tích đất.
- Tiết kiệm chi phí: So với việc xây thêm tầng, gác lửng giúp giảm đáng kể chi phí vật liệu và nhân công.
- Đa dạng phong cách: Có thể thiết kế hiện đại, tân cổ điển, hoặc tối giản, phù hợp nhiều nhu cầu thẩm mỹ khác nhau.
- Công năng linh hoạt: Gác lửng có thể bố trí phòng ngủ, phòng thờ, phòng làm việc hoặc không gian sinh hoạt chung.
Giải pháp tối ưu chi phí trong tầm tài chính 500 triệu
Với mức đầu tư 500 triệu đồng, gia chủ hoàn toàn có thể sở hữu một ngôi nhà gác lửng tiện nghi nếu biết cách phân bổ ngân sách hợp lý. Một số giải pháp bao gồm:
- Sử dụng vật liệu phổ thông nhưng chất lượng (gạch không nung, sơn chống thấm bền bỉ).
- Thiết kế theo mẫu sẵn có để giảm chi phí bản vẽ.
- Tối ưu không gian bằng nội thất đa năng.
- Giảm chi phí hoàn thiện bằng cách lựa chọn phong cách tối giản thay vì cầu kỳ.
Đối tượng phù hợp khi xây nhà gác lửng giá 500 triệu
- Gia đình có 3 – 5 thành viên, cần nhà từ 2 – 4 phòng ngủ.
- Người trẻ muốn xây dựng tổ ấm đầu tiên với chi phí tiết kiệm.
- Gia đình có quỹ đất hẹp (5x14m, 5x15m) nhưng muốn không gian thông thoáng, tiện nghi.

Các mẫu nhà gác lửng 500 triệu phổ biến hiện nay
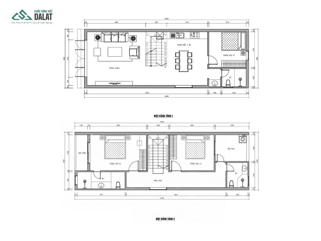
Nhà gác lửng 3 phòng ngủ 500 triệu
Mẫu nhà gác lửng 500 triệu 3 phòng ngủ là lựa chọn phổ biến cho gia đình 4–5 người nhờ không gian vừa đủ và chi phí hợp lý. Thiết kế tầng trệt thường gồm phòng khách, bếp, 1 phòng ngủ nhỏ và WC, còn gác lửng có thêm 2 phòng ngủ và không gian thờ. Với mức đầu tư 500 triệu, gia chủ hoàn toàn có thể sở hữu một căn nhà hiện đại, tiện nghi nếu tính toán kỹ lưỡng.

Mẫu nhà cấp 4 có gác lửng giá 500 triệu
Mẫu nhà gác lửng 500 triệu cấp 4 phù hợp ở nông thôn và ngoại ô nhờ chi phí thấp và thời gian thi công nhanh chỉ khoảng 3 – 4 tháng. Công năng được bố trí khoa học, đảm bảo sinh hoạt cho gia đình trẻ từ 3 – 4 người. Đây là giải pháp vừa tiết kiệm vừa mang lại không gian sống thoáng đãng.

Mẫu nhà cấp 4 trọn gói 500 triệu chữ L
Mẫu nhà gác lửng 500 triệu chữ L mang đến thiết kế độc đáo, dễ dàng tận dụng mọi góc đất không vuông vắn. Kiểu dáng chữ L giúp phân chia không gian hợp lý, tạo sự riêng tư cho từng khu vực. Với chi phí 500 triệu, gia đình có thể sở hữu ngôi nhà vừa thẩm mỹ vừa tiện nghi, đặc biệt phù hợp trên các lô đất méo hoặc góc.

Mẫu nhà cấp 4 gác lửng 5×15 giá 500 triệu
Nhà cấp 4 gác lửng 500 triệu 5×15 được đánh giá là kích thước lý tưởng để bố trí không gian sinh hoạt hợp lý. Tầng trệt thường gồm phòng khách, bếp, phòng ngủ và WC, còn gác lửng có thêm 2 phòng ngủ nhỏ. Mẫu nhà này dễ áp dụng nhiều phong cách thiết kế đẹp, chi phí hợp lý nhưng cần xử lý thoáng khí tốt để tránh cảm giác bí bách.

5x14m nhà gác lửng 3 phòng ngủ 500 triệu
Với diện tích 5x14m, mẫu nhà gác lửng 500 triệu 5x14m bố trí gọn gàng với phòng khách, bếp, phòng ngủ và WC ở tầng trệt; gác lửng gồm 2 phòng ngủ và không gian thờ. Gia chủ có thể tiết kiệm chi phí bằng cách dùng gạch block, cửa nhôm kính và gỗ công nghiệp. Đây là giải pháp kinh tế, phù hợp gia đình nhỏ muốn có đủ công năng.

Nhà gác lửng 4 phòng ngủ 500 triệu
Xây nhà gác lửng 500 triệu 4 phòng ngủ thích hợp với gia đình 5 – 6 người cần nhiều không gian riêng tư. Thiết kế này cho phép kết hợp thêm phòng khách hoặc phòng đa năng mà vẫn đảm bảo chi phí. Để thi công hợp lý, gia chủ nên chọn lô đất tối thiểu 5x16m và sử dụng phong cách hiện đại, tiết kiệm chi phí hoàn thiện.

Mẫu nhà cấp 4 trọn gói 500 triệu mái bằng
Mẫu nhà gác lửng 500 triệu mái bằng mang phong cách hiện đại, tối giản với hình khối vuông vắn, phù hợp cả thành thị lẫn nông thôn. Phần mái bằng bền vững, có thể tận dụng làm sân thượng hoặc không gian xanh thư giãn. Đây là lựa chọn lý tưởng cho gia đình muốn một căn nhà tiện nghi, tiết kiệm trong tầm ngân sách 500 triệu.

Mẫu nhà cấp 4 trọn gói 500 triệu mái lệch
Nhà cấp 4 mái lệch nổi bật với vẻ ngoài phá cách, hiện đại và trẻ trung. Phần mái thiết kế lệch nhau không chỉ tạo sự khác biệt mà còn giúp thoát nước nhanh và tăng tính thẩm mỹ. Đây là giải pháp dành cho gia đình yêu thích phong cách mới lạ nhưng vẫn đảm bảo chi phí trong mức 500 triệu.

Mẫu nhà cấp 4 trọn gói 500 triệu mái Thái
Mẫu nhà gác lửng 500 triệu mái Thái mang lại sự sang trọng, thanh lịch nhờ thiết kế mái dốc đặc trưng và màu sắc trung tính. Kiểu mái này thoát nước tốt, tạo cảm giác cao ráo, thoáng mát cho không gian. Với mức chi phí 500 triệu, mẫu nhà phù hợp cho gia đình 3 – 5 người muốn một không gian tiện nghi, hiện đại và bền vững.

Đơn giá xây dựng mẫu nhà gác lửng 500 triệu là bao nhiêu?
Chi phí xây dựng mẫu nhà gác lửng 500 triệu phụ thuộc vào nhiều yếu tố như vị trí thi công, thiết kế kiến trúc, vật liệu sử dụng và mức độ hoàn thiện. Thông thường, đơn giá xây dựng nhà cấp 4 hiện nay dao động từ 4 – 7 triệu đồng/m².
- Với đơn giá 4 triệu/m²: diện tích xây dựng khoảng 125m².
- Với đơn giá 6 triệu/m²: diện tích xây dựng khoảng 83m².
- Với đơn giá 7 triệu/m²: diện tích xây dựng khoảng 70m².
Đây chỉ là mức tham khảo. Thực tế, diện tích và chi phí có thể thay đổi tùy thuộc vào khu vực xây dựng (nông thôn hay thành phố), chất lượng vật liệu, phong cách thiết kế cũng như các yêu cầu riêng của gia chủ.

Chi phí xây dựng mẫu nhà gác lửng 500 triệu gồm những gì?
Xây dựng nhà gác lửng với ngân sách giới hạn đòi hỏi tính toán kỹ lưỡng.
Dự toán vật liệu: xi măng, cát, sắt thép, gạch
Chiếm khoảng 45 – 50% tổng chi phí. Nên lựa chọn vật liệu phổ thông nhưng có thương hiệu để đảm bảo chất lượng.
Nhân công và chi phí thi công
Dao động từ 100 – 120 triệu cho diện tích 60 – 70m². Tùy khu vực mà giá nhân công có thể khác nhau.
Trang trí nội thất cơ bản
Bao gồm cửa, tủ bếp, thiết bị vệ sinh, hệ thống điện nước. Gia chủ nên chọn mức hoàn thiện vừa phải để không vượt ngân sách.
Các chi phí phát sinh cần lưu ý
- Chi phí xin giấy phép xây dựng.
- Phí thiết kế bản vẽ.
- Phát sinh do thay đổi vật liệu hoặc mở rộng diện tích.
Để có bảng chi phí chi tiết và tối ưu, bạn có thể tham khảo dịch vụ xây nhà trọn gói Đà Lạt tại Cuộc Sống Việt – đơn vị luôn cam kết minh bạch, rõ ràng và tiết kiệm cho khách hàng.

Câu hỏi thường gặp về mẫu nhà gác lửng 500 triệu
Với 500 triệu có xây được nhà gác lửng 3 phòng ngủ không?
Có. Với diện tích 5x14m hoặc 5x15m, hoàn toàn có thể xây nhà gác lửng 3 phòng ngủ trong mức ngân sách này.
Có thể xây nhà gác lửng 4 phòng ngủ với chi phí 500 triệu không?
Có thể, nhưng cần tối ưu thiết kế và sử dụng vật liệu giá hợp lý. Thường áp dụng cho lô đất rộng từ 5x16m.
Nên chọn phong cách nào để tiết kiệm chi phí nhất?
Phong cách hiện đại, tối giản với đường nét vuông vắn, nội thất gọn nhẹ là lựa chọn tiết kiệm và hợp xu hướng khi muốn xây nhà gác lửng đẹp 500 triệu.
Kết luận
Với tài chính 500 triệu xây nhà gác lửng, gia chủ có cho mình nhiều lựa chọn khác nhau. Dù là mẫu nhà gác lửng 500 triệu hay các mẫu thiết kế hiện đại khác, chỉ cần tính toán hợp lý, bạn hoàn toàn có thể sở hữu một không gian sống tiện nghi, thẩm mỹ và bền vững.
Cuộc Sống Việt với nhiều năm kinh nghiệm trong lĩnh vực thiết kế thi công nhà ở tại Đà Lạt và các tỉnh thành luôn sẵn sàng đồng hành cùng bạn, mang đến giải pháp xây dựng trọn gói, tối ưu chi phí, đúng tiến độ và chất lượng.
