Trong bối cảnh đô thị hóa ngày càng phát triển, con người ngày càng có xu hướng tìm về với thiên nhiên để tìm kiếm sự cân bằng và bình yên trong cuộc sống. Thiết kế biệt thự sân vườn đẹp chính là giải pháp hoàn hảo đáp ứng nhu cầu đó. Loại hình này mang lại một không gian sống đẳng cấp, tiện nghi, là nơi gắn kết các thành viên trong gia đình với thiên nhiên. Bài viết dưới đây từ Cuộc Sống Việt sẽ mang đến cho bạn cái nhìn toàn diện nhất về biệt thự sân vườn, giúp bạn có được tổ ấm mơ ước của mình.
Các mẫu thiết kế biệt thự sân vườn đẹp được yêu thích
Cùng Cuộc Sống Việt tham khảo danh sách các mẫu thiết kế biệt thự sân vườn đẹp được nhiều gia chủ ưa chuộng nhé!
Thiết kế biệt thự vườn 1 tầng tiện nghi
Mẫu biệt thự này nổi bật với không gian sống gói gọn trong một mặt sàn, phù hợp với gia đình có người lớn tuổi hoặc trẻ nhỏ. Ưu điểm là dễ di chuyển, kết nối chặt chẽ với không gian vườn và chi phí xây dựng vừa phải.

Nhà biệt thự sân vườn đẹp 2 tầng sang trọng
Với thiết kế hai tầng, mẫu biệt thự này mở rộng diện tích sử dụng và đáp ứng tốt nhu cầu của gia đình nhiều thành viên. Kiến trúc đa dạng, có thể kết hợp phòng làm việc, phòng giải trí và ban công lớn hướng ra vườn.

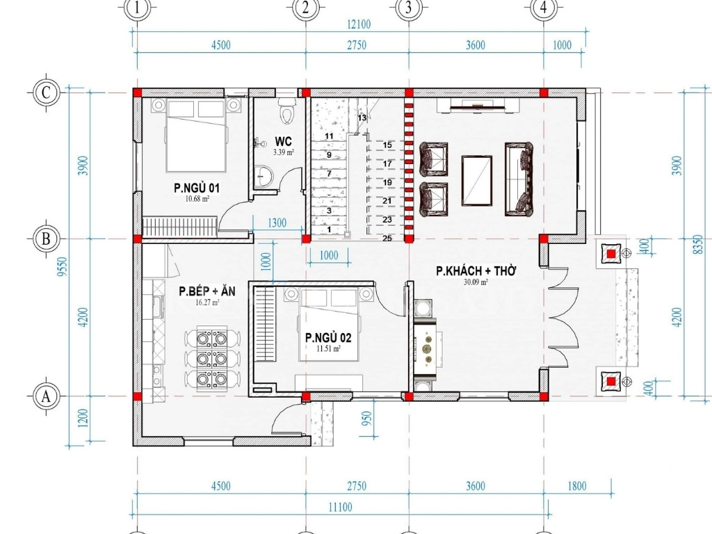
Biệt thự nhà vườn đẹp 3 tầng đẳng cấp
Dành cho gia đình có diện tích đất lớn và muốn khẳng định đẳng cấp, mẫu biệt thự 3 tầng mang đến không gian sống xa hoa với đầy đủ tiện ích: hồ bơi, gara, phòng gym, phòng chiếu phim,…

Mẫu biệt thự nhà vườn có hồ bơi
Sự kết hợp giữa hồ bơi ngoài trời và khu vườn xanh mát tạo nên không gian nghỉ dưỡng lý tưởng ngay trong chính ngôi nhà. Đây là xu hướng được nhiều gia đình trẻ ưa chuộng.

Mẫu nhà biệt thự vườn 2 tầng hiện đại có tum
Biệt thự 2 tầng phong cách hiện đại với đường nét tối giản, hình khối vuông vắn mạnh mẽ. Những mảng kính lớn giúp không gian luôn sáng sủa, mở rộng tầm nhìn ra sân vườn xanh mát. Thiết kế có tum vừa tăng thêm diện tích sử dụng, vừa tạo điểm nhấn thời thượng.

Biệt thự vườn đẹp 2 tầng hình chữ L hiện đại
Kiến trúc chữ L tạo khoảng sân trung tâm thoáng đãng, thuận tiện làm nơi sinh hoạt ngoài trời. Đường nét dứt khoát kết hợp nhiều cửa kính lớn giúp căn biệt thự luôn tràn ngập ánh sáng. Đây là lựa chọn tối ưu công năng và kết nối mạnh mẽ với thiên nhiên.

Biệt thự nhà vườn 2 tầng Địa Trung Hải
Đặc trưng với mái vòm, tường trắng và ô cửa cong mềm mại, biệt thự mang đậm hơi thở Địa Trung Hải. Ban công rộng mở đón nắng gió, tạo bầu không khí trong lành và tươi sáng. Kiểu thiết kế này mang lại cảm giác nghỉ dưỡng sang trọng ngay tại ngôi nhà của bạn.

Mẫu biệt thự nhà vườn 2 tầng mái Thái độc đáo
Mái Thái truyền thống kết hợp gam trắng chủ đạo và cửa gỗ nâu tạo nét hài hòa, tinh tế. Không gian sân vườn rộng vừa là nơi trẻ nhỏ vui chơi, vừa tiện dụng để xe cộ. Thiết kế này dung hòa giữa nét đẹp hoài cổ và nhu cầu sống hiện đại.

Thiết kế biệt thự sân vườn đẹp 2 tầng Tân cổ điển
Phong cách tân cổ điển Châu Âu bề thế với hệ trụ vững chãi và gam màu trắng thanh lịch. Bố cục mở mang đến sự tiện nghi, nhiều phòng chức năng đáp ứng đủ nhu cầu sinh hoạt. Ngôi nhà toát lên vẻ sang trọng, đẳng cấp và thể hiện gu thẩm mỹ tinh tế của gia chủ.

Thiết kế biệt thự sân vườn đẹp 2 tầng phong cách Farmhouse
Farmhouse mang đến cảm giác ấm áp, mộc mạc với mái dốc, hiên rộng và vật liệu gỗ, đá gần gũi. Thiết kế đơn giản nhưng tinh tế, gợi không khí yên bình của miền quê hiện đại. Đây là lựa chọn lý tưởng cho gia đình yêu thiên nhiên và lối sống giản dị.

Thiết kế biệt thự sân vườn đẹp 2 tầng mái bằng lãng mạn
Thiết kế biệt thự sân vườn 2 tầng mái bằng mang đến vẻ đẹp lãng mạn và hiện đại, phù hợp cho những gia chủ yêu thích sự tinh tế nhưng vẫn trẻ trung. Kiến trúc mái bằng giúp tổng thể ngôi nhà trở nên vuông vức, sang trọng, dễ kết hợp với các mảng xanh sân vườn và không gian mở.

Bản vẽ thiết kế nhà vườn đẹp kiểu Nhật 2 tầng
Bản vẽ thiết kế nhà vườn kiểu Nhật 2 tầng mang đến không gian sống thanh thoát, gần gũi thiên nhiên. Kiến trúc tối giản, hài hòa giữa sân vườn, hồ nước và nội thất gỗ giúp gia chủ tận hưởng sự an yên. Đây là lựa chọn lý tưởng cho những ai yêu thích phong cách sống tinh tế, giản dị nhưng vẫn tiện nghi.

👉 Tham khảo thêm bài viết Biệt thự sân vườn Nam Ban để xem chi tiết một dự án thực tế đã được Cuộc Sống Việt triển khai tại Đà Lạt.
Giới thiệu về thiết kế biệt thự sân vườn đẹp
Thiết kế biệt thự sân vườn đẹp là gì?
Biệt thự sân vườn là loại hình kiến trúc nhà ở cao cấp được xây dựng trên khu đất rộng rãi, kết hợp giữa không gian sống tiện nghi và hệ thống cảnh quan xanh mát xung quanh. Điểm đặc biệt của loại hình này là sự hòa quyện giữa kiến trúc – thiên nhiên – con người, tạo nên môi trường sống trong lành, thư thái và gần gũi với tự nhiên.
Vì sao thiết kế biệt thự sân vườn đẹp ngày càng được ưa chuộng?
Theo thống kê từ thị trường bất động sản 2024, tỷ lệ tìm kiếm “biệt thự sân vườn” tăng hơn 45% so với năm trước, cho thấy nhu cầu ngày càng cao đối với không gian sống xanh và bền vững.
- Không gian sống chất lượng: Mang đến môi trường sống thoáng đãng, trong lành, giúp tái tạo năng lượng sau những giờ làm việc căng thẳng.
- Tính thẩm mỹ cao: Thiết kế đa dạng phong cách, từ cổ điển, hiện đại đến Á Đông hay xanh bền vững.
- Giá trị sử dụng và đầu tư lớn: Không chỉ là nơi ở lý tưởng, biệt thự sân vườn còn là tài sản có giá trị gia tăng theo thời gian.

Cuộc Sống Việt là công ty thiết kế thi công biệt thự uy tín tại Đà Lạt, với đội ngũ kiến trúc sư giàu kinh nghiệm và phong cách sáng tạo. Mỗi bản thiết kế đều được tính toán kỹ lưỡng để vừa đảm bảo thẩm mỹ, vừa tối ưu công năng và ngân sách cho gia chủ. Nếu bạn quan tâm đến chi phí thực tế để sở hữu một không gian sống hoàn hảo như vậy, hãy tham khảo ngay giá thiết kế thi công biệt thự trọn gói để có định hướng rõ ràng trước khi triển khai dự án.
Điểm khác biệt so với biệt thự phố và nhà phố thông thường
Dưới đây là bảng so sánh các tiêu chí giữa thiết kế biệt thự sân vườn đẹp và nhà phố thông thường:
| Tiêu chí | Biệt thự sân vườn | Biệt thự phố / nhà phố |
| Diện tích | Rộng rãi, thường từ 200m² trở lên | Hạn chế, trung bình dưới 150m² |
| Không gian xanh | Chiếm phần lớn tổng diện tích | Hạn chế hoặc gần như không có |
| Thiết kế | Mở, kết nối với thiên nhiên | Tối ưu diện tích, thường khép kín |
| Phong cách sống | Gắn liền với nghỉ dưỡng | Phục vụ sinh hoạt hàng ngày |
Đặc trưng nổi bật trong thiết kế biệt thự sân vườn đẹp
Kiến trúc hài hòa với thiên nhiên
Biệt thự sân vườn luôn chú trọng đến sự cân đối giữa kiến trúc và không gian xanh. Từ hình khối tổng thể cho đến chi tiết trang trí đều được thiết kế để hòa nhập với cảnh quan xung quanh. Việc kết hợp hồ nước, tiểu cảnh và cây xanh không chỉ nâng cao tính thẩm mỹ mà còn cải thiện vi khí hậu cho ngôi nhà.
Sự đa dạng về phong cách thiết kế
Từ phong cách hiện đại tối giản, tân cổ điển sang trọng cho đến Á Đông truyền thống, mỗi mẫu biệt thự sân vườn đều mang một bản sắc riêng. Chính sự linh hoạt này giúp gia chủ dễ dàng lựa chọn phong cách phù hợp với sở thích và điều kiện tài chính của mình.
Bố cục công năng tiện nghi, thoáng đãng
Không gian bên trong thiết kế biệt thự sân vườn đẹp thường được chia thành nhiều khu vực chức năng: phòng khách, phòng ngủ, bếp, phòng giải trí, thư viện… và đều kết nối linh hoạt với không gian ngoài trời. Các mảng kính lớn và cửa mở rộng giúp đón ánh sáng tự nhiên, tạo cảm giác gần gũi và thoáng mát.
Cảnh quan xanh và không gian mở
Một trong những yếu tố làm nên “linh hồn” của biệt thự sân vườn là cảnh quan xung quanh. Sân vườn không chỉ đơn thuần là nơi trồng cây mà còn là không gian thư giãn, tổ chức tiệc ngoài trời hay khu vui chơi cho trẻ nhỏ. Các yếu tố như hồ cá koi, vườn hoa, lối đi lát đá… được bố trí hài hòa tạo nên tổng thể sinh động và gần gũi với thiên nhiên.

Các phong cách thiết kế biệt thự sân vườn phổ biến
Mẫu biệt thự nhà vườn đẹp hiện đại
Phong cách hiện đại chú trọng vào đường nét hình khối tối giản, sử dụng vật liệu hiện đại như kính, thép và bê tông. Không gian mở, ánh sáng tự nhiên và thiết kế liên kết giữa trong – ngoài là điểm nhấn nổi bật. Đây là lựa chọn hoàn hảo cho gia chủ yêu thích sự trẻ trung, năng động và tiện nghi.
- Đặc điểm: Thiết kế đơn giản, màu sắc trung tính, tối ưu không gian.
- Ưu điểm: Thi công nhanh, chi phí hợp lý, dễ kết hợp cảnh quan.
- Phù hợp: Gia đình trẻ, người yêu thích phong cách sống hiện đại.

Biệt thự sân vườn cổ điển – tân cổ điển
Phong cách thiết kế biệt thự sân vườn đẹp này nổi bật với những chi tiết phào chỉ tinh xảo, mái vòm, cột trụ lớn và tỷ lệ kiến trúc cân đối. Không gian mang vẻ đẹp sang trọng, quý phái và thể hiện rõ đẳng cấp của gia chủ.
- Đặc điểm: Sử dụng vật liệu cao cấp, màu sắc sang trọng như trắng, vàng, kem.
- Ưu điểm: Thể hiện đẳng cấp và giá trị lâu dài.
- Phù hợp: Gia đình có tiềm lực tài chính mạnh, yêu thích phong cách kiến trúc châu Âu.

Biệt thự sân vườn phong cách Á Đông
Phong cách Á Đông kết hợp hài hòa yếu tố truyền thống với hiện đại, chú trọng yếu tố phong thủy và cân bằng âm dương. Các vật liệu tự nhiên như gỗ, tre, đá thường được sử dụng để tạo nên sự gần gũi và ấm cúng.
- Đặc điểm: Mái ngói cong, sân trong, hồ nước và tiểu cảnh.
- Ưu điểm: Gần gũi thiên nhiên, phù hợp khí hậu Việt Nam.
- Phù hợp: Gia chủ đề cao yếu tố văn hóa truyền thống.

Biệt thự sân vườn phong cách xanh – bền vững
Đây là xu hướng nổi bật những năm gần đây với trọng tâm là tiết kiệm năng lượng và thân thiện môi trường. Biệt thự sử dụng vật liệu tái chế, hệ thống năng lượng mặt trời, thu nước mưa và kết hợp cây xanh để tạo môi trường sống lành mạnh.
- Đặc điểm: Không gian mở, nhiều cây xanh, hệ thống năng lượng tự nhiên.
- Ưu điểm: Giảm chi phí vận hành, bảo vệ môi trường.
- Phù hợp: Gia đình yêu thích lối sống xanh và bền vững.

Yếu tố quan trọng khi thiết kế biệt thự sân vườn đẹp
Để sở hữu một biệt thự sân vườn đẹp, tiện nghi và bền vững, gia chủ cần quan tâm đến nhiều yếu tố từ lựa chọn vị trí, bố trí công năng cho đến cảnh quan và vật liệu sử dụng.
Lựa chọn vị trí và diện tích khu đất
Vị trí quyết định rất lớn đến khả năng tận dụng cảnh quan và giá trị phong thủy của ngôi nhà. Một khu đất bằng phẳng, có hướng gió mát và ánh sáng tốt sẽ giúp tối ưu thiết kế kiến trúc. Diện tích cũng cần được tính toán kỹ lưỡng để cân đối giữa không gian xây dựng và phần sân vườn xung quanh.
Phân chia công năng hợp lý
Biệt thự sân vườn cần có bố cục khoa học giữa khu vực sinh hoạt chung, khu vực nghỉ ngơi, khu vực giải trí và khu vực xanh.
- Khu vực sinh hoạt chung: Phòng khách, bếp, phòng ăn.
- Khu vực riêng tư: Phòng ngủ, phòng làm việc.
- Khu vực ngoài trời: Sân vườn, hồ nước, bể bơi, khu BBQ.
Kết hợp cảnh quan, cây xanh và hồ nước
Một trong những yếu tố làm nên giá trị biệt thự sân vườn chính là cảnh quan. Việc bố trí cây xanh, hồ cá koi, tiểu cảnh hay đài phun nước giúp không gian sống trở nên sinh động, mang yếu tố phong thủy và cân bằng sinh thái.
Lựa chọn phong cách phù hợp nhu cầu và ngân sách
Mỗi phong cách thiết kế sẽ kéo theo chi phí khác nhau. Biệt thự hiện đại có thể tiết kiệm hơn phong cách tân cổ điển. Do đó, việc xác định rõ ngân sách từ đầu sẽ giúp gia chủ dễ dàng lựa chọn phương án phù hợp.
Tối ưu ánh sáng và thông gió tự nhiên
Ánh sáng và không khí tự nhiên không chỉ giúp tiết kiệm năng lượng mà còn cải thiện sức khỏe và chất lượng sống. Thiết kế cửa kính lớn, giếng trời và không gian mở sẽ giúp tận dụng tối đa nguồn năng lượng tự nhiên.

Kinh nghiệm thiết kế biệt thự sân vườn đẹp
Xác định nhu cầu, phong cách và ngân sách ngay từ đầu
Trước khi bắt đầu dự án, gia chủ cần xác định rõ số lượng phòng, mục đích sử dụng và phong cách thiết kế để tránh thay đổi nhiều lần gây phát sinh chi phí.
Lựa chọn đơn vị thiết kế – thi công uy tín
Một đơn vị có kinh nghiệm sẽ tư vấn giải pháp tối ưu từ ý tưởng đến thi công, giúp tiết kiệm chi phí và đảm bảo chất lượng công trình. Bạn có thể tham khảo các dự án thực tế tại Cuộc Sống Việt – đơn vị chuyên thiết kế kiến trúc biệt thự và nhà ở cao cấp tại Đà Lạt.
Giám sát thi công để đảm bảo chất lượng
Trong quá trình xây dựng, gia chủ nên thường xuyên kiểm tra tiến độ và chất lượng thi công để đảm bảo công trình đúng như thiết kế ban đầu.
Tư vấn nội thất và cảnh quan đồng bộ
Một biệt thự đẹp cần có sự đồng nhất giữa kiến trúc, nội thất và cảnh quan. Việc tư vấn tổng thể ngay từ đầu giúp công trình hài hòa và tránh phải chỉnh sửa về sau.

Câu hỏi thường gặp về thiết kế biệt thự sân vườn đẹp
Nên chọn biệt thự sân vườn 1 tầng hay 2 tầng?
Tùy nhu cầu sử dụng. 1 tầng phù hợp với gia đình có người lớn tuổi hoặc trẻ nhỏ; 2 tầng tối ưu diện tích sử dụng và phân chia không gian rõ ràng hơn.
Diện tích bao nhiêu là phù hợp để xây biệt thự sân vườn?
Tối thiểu từ 200m² trở lên để đảm bảo có đủ không gian cho cả phần nhà và khu vực sân vườn xung quanh.
Chi phí thiết kế biệt thự sân vườn trọn gói khoảng bao nhiêu?
Trung bình từ 150.000 – 300.000 VNĐ/m² cho phần thiết kế, và từ 5 – 8 triệu VNĐ/m² cho phần xây dựng hoàn thiện.
Có nên đầu tư biệt thự sân vườn cho thuê nghỉ dưỡng?
Có. Đây là xu hướng được nhiều nhà đầu tư lựa chọn vì mang lại lợi nhuận cao và giá trị gia tăng theo thời gian, đặc biệt tại các khu du lịch như Đà Lạt.
Kết luận
Thiết kế biệt thự sân vườn đẹp không chỉ là việc tạo ra một ngôi nhà sang trọng mà còn là cách xây dựng một không gian sống trong lành, kết nối con người với thiên nhiên. Với sự đa dạng phong cách, công năng linh hoạt và giá trị lâu dài, biệt thự sân vườn đang trở thành xu hướng tất yếu của kiến trúc hiện đại. Hãy bắt đầu bằng việc xác định nhu cầu và ngân sách rõ ràng, sau đó hợp tác với một đơn vị thiết kế uy tín như Cuộc Sống Việt để biến ý tưởng biệt thự sân vườn mơ ước của bạn thành hiện thực.
