Trước khi xây nhà, thiết kế kiến trúc có vai trò thiết yếu trong việc định hình công năng, thẩm mỹ và chất lượng công trình. Nhận thấy tầm quan trọng đó, ngày càng nhiều gia đình ưu tiên lựa chọn đơn vị thiết kế chuyên nghiệp ngay từ đầu. Cuộc Sống Việt tự hào là đơn vị uy tín, mang đến giải pháp tối ưu với chi phí hợp lý, phù hợp với nhu cầu và ngân sách của từng gia đình. Đọc tiếp bài viết sau để hiểu hơn về hồ sơ và quy trình cụ thể của việc thiết kế nhà ở nhé!
1. Thiết kế kiến trúc là gì?
Thiết kế kiến trúc là quá trình các kiến trúc sư bố trí và tổ chức không gian sống bao gồm kiến trúc ngoại thất, kết cấu công trình, hệ thống điện nước, ánh sáng và thông gió,… nhằm tạo nên một công trình tiện nghi, thẩm mỹ và bền vững.

Một bản thiết kế kiến trúc hoàn chỉnh không chỉ đến từ khả năng sáng tạo mà còn từ gu thẩm mỹ tinh tế và kiến thức chuyên sâu về kết cấu xây dựng. Đây cũng là nền tảng để tạo ra những công trình đẹp mắt, vững chãi theo thời gian.
2. Những yêu cầu quan trọng trong thiết kế kiến trúc
Một bản thiết kế kiến trúc hiệu quả không chỉ cần đẹp mà còn phải đáp ứng đầy đủ 5 tiêu chí cốt lõi dưới đây:
2.1. Công năng sử dụng
Mỗi loại công trình nhà ở, văn phòng, khu nghỉ dưỡng đều có những yêu cầu sử dụng riêng. Nhiệm vụ của thiết kế kiến trúc là tối ưu hóa diện tích, sắp xếp không gian hợp lý và đảm bảo sự tiện nghi trong sinh hoạt hàng ngày. Chẳng hạn, nhà ở cần được bố trí thoáng đãng, đón sáng tự nhiên tốt và thuận tiện theo thói quen của từng gia đình. Trong khi đó, văn phòng cần thiết kế gọn gàng, đảm bảo tính riêng tư và hỗ trợ hiệu quả làm việc.
2.2. Đảm bảo an toàn
Yếu tố an toàn kỹ thuật cũng đóng vai trò quan trọng trong mỗi thiết kế. Kiến trúc sư phải tính toán kỹ lưỡng các hệ thống kết cấu, điện nước, thông gió và phòng cháy chữa cháy để đảm bảo công trình vận hành ổn định, bền vững theo thời gian. Các thông số kỹ thuật phải được xác lập dựa trên dữ liệu thực tế, tránh sai lệch khi thi công.
2.3. Đáp ứng yêu cầu thẩm mỹ
Ai cũng mong muốn ngôi nhà hay công trình của mình mang đậm dấu ấn cá nhân, vừa đẹp mắt, vừa thể hiện được gu thẩm mỹ riêng và sự chỉn chu trong từng chi tiết. Một công trình đẹp là sự tổng hòa giữa hình khối, vật liệu, màu sắc, ánh sáng và nội thất, đồng thời thể hiện được phong cách riêng của chủ đầu tư.
2.4. Phù hợp kinh tế
Một công trình kiến trúc dù đẹp đến đâu cũng cần cân đối với ngân sách thực tế của gia chủ. Việc lập danh sách rõ ràng các vật liệu, thiết bị và dự trù chi phí chi tiết ngay từ đầu sẽ giúp tránh phát sinh không cần thiết, hạn chế phải chỉnh sửa bản vẽ hoặc thay đổi thiết kế giữa chừng. Thiết kế tốt là thiết kế vừa thẩm mỹ, vừa khả thi về tài chính.
2.5. Mang lại giá trị về xã hội
Kiến trúc dù nhỏ hay lớn luôn là một phần của văn hóa và dấu ấn thời đại. Mỗi công trình kiến trúc đẹp không chỉ phục vụ nhu cầu cá nhân mà còn góp phần làm đẹp cảnh quan, nâng cao hình ảnh đô thị và truyền cảm hứng tích cực đến cộng đồng.

3. Hồ sơ thiết kế kiến trúc bao gồm những gì?
Thông thường, các kiến trúc sư sẽ lên một bộ hồ sơ thiết kế cho chủ nhà xem. Sau đó, hai bên sẽ cùng thảo luận để đưa ra một thiết kế hoàn chỉnh, phù hợp nhất với yêu cầu. Thông thường hồ sơ thiết kế sẽ gồm các loại bản vẽ thiết kế kiến trúc như sau:
-
- Phối cảnh công trình
- Bản vẽ mặt bằng
- Bản vẽ mặt đứng
- Bản vẽ mặt cắt
- Bản vẽ chi tiết
- Bản vẽ kiến trúc
- Bản vẽ kết cấu
- Bản vẽ điện, thông gió, thông tin liên lạc
- Bản vẽ nước
3.1. Phối cảnh công trình
Hình 3D có màu sắc và vật liệu, hình khối công trình được thể hiện trực quan như mắt người nhìn. Phối cảnh sẽ như một tấm hình chụp công trình sau khi hoàn thiện giúp cho gia chủ dễ hình dung thực tế ngôi nhà mình sẽ thế nào.

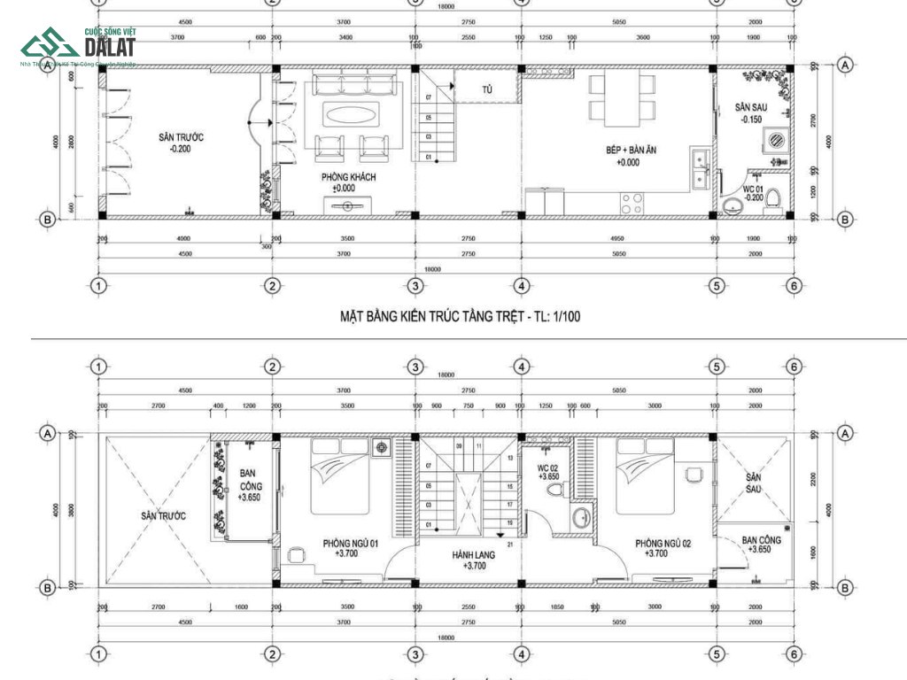
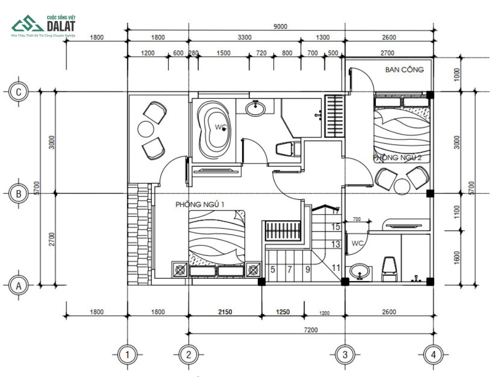
3.2. Bản vẽ mặt bằng
Nếu nhìn thẳng từ trên xuống không cắt qua gì hết thì gọi là mặt bằng tổng thể. Nếu lấy 1 tầng rồi đưa 1 mặt phẳng cắt ngang qua ở cao độ khoảng 1.2m tính từ sàn của tầng rồi nhìn xuống thì ta được mặt bằng của tầng đó. Mặt bằng thể hiện nội dung các tầng của ngôi nhà nhìn từ trên xuống.
Thông thường trong một căn nhà có các loại mặt bằng sau:
3.2.1. Mặt bằng tổng thể
Thể hiện hình chiếu từ trên xuống của toàn bộ khu đất để thấy được bố trí tông thể nhìn từ trên cao các thành phần như vị trí ngôi nhà, vị trí hồ bơi, vị trí gara, tổng thể sân vườn…
3.2.2. Mặt bằng chi tiết
Thể hiện toàn bộ kích thước chi tiết các thành phần kiến trúc trong nhà như tường, cửa, vị trí thang,… Đây là mặt bằng quan trọng nhất và được sử dụng nhiều nhất trong quá trình thi công xây dựng.
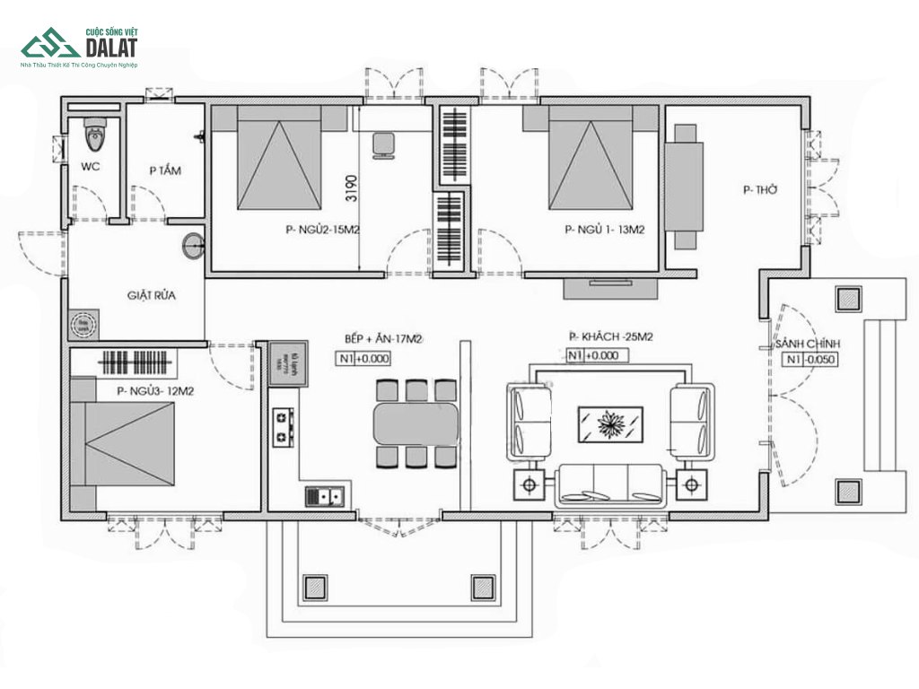
3.2.3. Mặt bằng bố trí
Thể hiện bố trí công năng, vật dụng trong nhà giúp hình dung chức năng, cách sắp xếp vật dụng trong phòng và toàn bộ căn nhà.
3.2.4. Mặt bằng sàn hoàn thiện
Thể hiện phần hoàn thiện của mặt sàn, vị trí lát gạch ( các loại gạch khác nhau cho các phòng nếu có), vị trí sàn gỗ, vị trí ngạch cửa, phần nào hạ sàn với độ dốc bao nhiêu…
3.2.5. Mặt bằng trần hoàn thiện
Còn gọi là mặt bằng trần đèn, thể hiện loại trần, cao độ trần hoàn thiện của từng khu vực cụ thể có khe rèm hay lỗ trang trí nếu có trên trần. Ngoài ra, mặt bằng này cũng thể hiện vị trí đèn chiếu sáng gắn trần.
3.2.6. Mặt bằng định vị cửa
Mặt bằng này sẽ hiển thị vị trí, ký hiệu các loại cửa khác nhau. Nếu bản vẽ mặt bằng chi tiết có tỷ lệ lớn, mặt bằng này có thể gộp chung vào mặt bằng chi tiết kể trên.
3.2.7. Mặt bằng chi tiết phóng lớn từng thành phần kiến trúc cụ thể
Trường hợp mặt bằng chi tiết của toàn bộ căn nhà không thể hiện hết được các kích thước nhỏ hơn thì sẽ có các mặt bằng phóng lớn cho từng thành phần cụ thể như mặt bằng bố trí vệ sinh, mặt bằng thang, mặt bằng sảnh vào,…

3.3. Bản vẽ mặt đứng
Đây là hình chiếu thẳng góc các mặt của ngôi nhà để thể hiện các nội dung trên các mặt bên ngoài ngôi nhà. Bản vẽ mặt đứng còn thể hiện các loại vật liệu ốp trang trí và màu sơn ngoại thất căn nhà.

3.4. Bản vẽ mặt cắt
Tương tự như mặt đứng nhưng nhìn thẳng góc vào mặt cắt thay vị từ bên ngoài, bằng cách đưa một mặt phẳng cắt bổ dọc hoặc bổ ngang ngôi nhà để thể hiện các nội dung phía trong nhà theo chiều đứng và thể hiện cấu tạo ngôi nhà.
Bản vẽ mặt cắt thể hiện các nội dung phía trong nhà theo chiều đứng
Ngoài mặt cắt toàn bộ ngôi nhà còn có mặt cắt qua các chi tiết kiến trúc – nội thất – kết cấu… để thể hiện cấu tạo bên trong của chi tiết đó khi mà mặt bằng hoặc bằng đứng không thể hiện được.
3.5. Bản vẽ chi tiết
Mỗi chi tiết trong bản vẽ này cần thể hiện bao gồm mặt bằng, mặt đứng, mặt cắt của riêng đối tượng đó được phóng lớn để dễ dàng quan sát. Thông thường sẽ có các bản vẽ thể hiện chi tiết phòng vệ sinh, chi tiết sảnh vào, chi tiết thang, các chi tiết trang trí mặt đứng, chi tiết mái, chi tiết bồn hoa nếu có.

3.6. Bản vẽ kiến trúc nhà
Bản vẽ này thể hiện toàn bộ kích thước, chi tiết của phần xây dựng thô và hoàn thiện của ngôi nhà. Đơn vị thi công sẽ dựa vào bản vẽ này để thực hiện phần xây dựng và hoàn thiện cho ngôi nhà.
3.7. Bản vẽ kết cấu
Sẽ thể hiện toàn bộ các thành phần liên quan đến hệ khung chịu lực chính của công trình và một vài chi tiết kiến trúc cần có kết cấu chi tiết. Đơn vị thi công sẽ dựa vào bản vẽ kết cấu để xây dựng hệ khung chịu lực chính cho công trình. Danh mục bản vẽ kết cấu thông thường sẽ bao gồm:
-
- Phần cọc (nếu có)
- Phần móng
- Phần cột
- Phần dầm – sàn
- Chi tiết thang, lanh-tô và các chi tiết khác nếu có
- Chi tiết bể phốt
- Tấm đan bể phốt
- Thống kê cốt thép

3.8. Bản vẽ điện, thông gió, thông tin liên lạc
Sẽ thể hiện các thành phần liên quan đến hệ thống điện, tủ điện, ổ cắm, công tắc, nguồn chờ, sơ đồ bố trí, đi dây, tủ kỹ thuật cho cả các hạng mục liên quan hệ thống thông gió, máy lạnh, thông tin liên lạc, camera, chống sét (nếu có).
3.9. Bản vẽ nước
Bản vẽ này thể hiện các thành phần liên quan đến hệ thống cấp thoát nước của công trình.

4. Các phong cách thiết kế kiến trúc trong từng công trình
Tùy theo mục đích sử dụng, vị trí xây dựng, diện tích và ngân sách đầu tư, mỗi công trình sẽ cần một định hướng thiết kế kiến trúc khác nhau. Dưới đây là những loại hình thiết kế nhà phổ biến, được nhiều khách hàng lựa chọn:
4.1. Thiết kế kiến trúc nhà cấp 4
Nhà cấp 4 là lựa chọn phổ biến của các gia đình có thu nhập trung bình, ít thành viên và ưu tiên tiết kiệm chi phí xây dựng. Thiết kế nhà cấp 4 thường đề cao sự đơn giản, công năng tối ưu, phù hợp với diện tích đất không quá lớn. Các kiến trúc sư sẽ dựa trên nhu cầu sử dụng thực tế để bố trí không gian hợp lý, phổ biến là từ 2 – 4 phòng ngủ, đảm bảo sinh hoạt thoải mái mà vẫn tiết kiệm chi phí đầu tư.

4.2. Thiết kế kiến trúc nhà phố
Nhà phố thường tọa lạc tại các khu đô thị đông dân cư, có mặt tiền hẹp nhưng chiều sâu lớn. Do đó, thiết kế nhà phố cần cân bằng giữa tính thẩm mỹ và công năng. Mặt tiền sẽ được đầu tư kỹ lưỡng để tạo ấn tượng thị giác, đồng thời bố trí nội thất bên trong gọn gàng, thông thoáng và tiện nghi. Kiến trúc sư thường lựa chọn phong cách hiện đại hoặc tối giản để tối ưu diện tích mà vẫn thể hiện phong cách sống của gia chủ.

4.3. Thiết kế kiến trúc biệt thự cổ điển và tân cổ điển
Biệt thự phong cách cổ điển và tân cổ điển là biểu tượng của sự sang trọng, đẳng cấp và tinh tế. Các mẫu thiết kế biệt thự 2 tầng tân cổ điển ngày càng được ưa chuộng bởi sự hòa quyện giữa nét đẹp truyền thống và hơi thở hiện đại. Đặc trưng của kiến trúc này là hệ cột vững chắc, chi tiết phào chỉ cầu kỳ, mái vòm bề thế và các chi tiết đối xứng tỉ mỉ, tạo nên vẻ ngoài nguy nga như những dinh thự Châu Âu.

4.4. Thiết kế kiến trúc nhà ống
Nhà ống là giải pháp kiến trúc phổ biến ở các đô thị Việt Nam, nơi có quỹ đất hạn chế nhưng nhu cầu về không gian sống vẫn cao. Với hình khối đơn giản, chi phí vừa phải và thời gian thi công nhanh, nhà ống phù hợp với đa dạng phong cách như hiện đại, tân cổ điển hay tối giản. Dù chiều ngang hẹp, nhưng nếu biết cách bố trí giếng trời, hệ cửa kính và nội thất hợp lý, nhà ống vẫn có thể đảm bảo đủ sáng, thoáng mát và tiện nghi cho cả gia đình.

4.5. Thiết kế kiến trúc biệt thự phong cách Địa Trung Hải
Biệt thự phong cách Địa Trung Hải nổi bật với sự giao thoa giữa vẻ đẹp hiện đại, sang trọng và hơi thở hoài cổ đặc trưng. Lối thiết kế này gây ấn tượng mạnh nhờ các đường nét hình khối rõ ràng, bề thế, kết hợp với chi tiết mềm mại mang hơi hướng tân thời. Không gian sống như được hòa quyện vào thiên nhiên, mang lại sự thư giãn và thanh bình cho gia chủ.

5. So sánh sự khác biệt giữa thiết kế kiến trúc và thiết kế nội thất
Thiết kế kiến trúc và thiết kế nội thất đều góp phần kiến tạo nên một công trình hoàn chỉnh. Tuy nhiên, mỗi lĩnh vực lại đảm nhiệm một vai trò riêng biệt. Dưới đây là bảng so sánh giúp bạn phân biệt rõ hơn hai khái niệm này:
Nội dung | Thiết kế kiến trúc | Thiết kế nội thất |
Phạm vi | Tập trung vào tổng thể ngoại thất và cấu trúc chính của ngôi nhà như tường, mái, hiên | Hoàn thiện phần bên trong với các vật dụng bao gồm giường, tủ, bàn ghế, kệ, vật dụng trang trí, các chi tiết hoa văn ở trần, sàn,… |
Cách quy hoạch không gian | Sắp xếp các khu chức năng lớn sao cho hợp lý, khoa học như: phòng khách, phòng ăn, phòng ngủ, phòng thờ, khu vực ban công, hệ thống các hướng cửa, khu vực để xe, ban công,… | Bố trí chi tiết từng món đồ nội thất để đảm bảo tính thẩm mỹ và công năng |
Màu sắc | Chủ yếu sử dụng các mảng màu lớn như sơn tường, mái ngói, gạch ốp | Kết hợp hài hòa, khéo léo màu sắc nội thất, chất liệu và phụ kiện trang trí |
Ánh sáng | Tính toán sao cho ngôi nhà nhận được nguồn ánh sáng và luồng gió tự nhiên tốt nhất | Bố trí hệ thống đèn chiếu sáng trong nhà phù hợp từng khu vực |
Kiến thức cần chú trọng | Yêu cầu hiểu biết sâu về kết cấu, vật liệu, nguyên lý thiết kế và đặc điểm địa hình, khí hậu thời tiết,… | Cần kiến thức về thẩm mỹ, công năng nội thất, vật liệu hoàn thiện, phối màu, tâm lý người dùng và xu hướng thiết kế sao cho đẹp và tiện dụng |
6. Quy trình thiết kế kiến trúc của Cuộc Sống Việt
Sau nhiều lần sửa đổi, Cuộc Sống Việt đã đưa ra quy trình thiết kế kiến trúc chi tiết với thời gian thực hiện các giai đoạn rõ ràng để hai bên tiết kiệm thời gian trong quá trình làm việc. Quy trình cụ thể như sau:
Bước 1:
-
- Tiếp nhận yêu cầu sơ bộ của khách hàng qua mạng xã hội, số điện thoại hoặc email. Ngoài ra khách hàng cũng có thể trực tiếp đến văn phòng của Cuộc Sống Việt để thực hiện bước này.
- Báo giá thiết kế sơ bộ dựa theo nhu cầu của khách hàng.
Bước 2:
-
- Gặp khách hàng trực tiếp để tư vấn và khảo sát hiện trạng khu đất.
Bước 3:
-
- Ký hợp đồng thiết kế nhà và trao đổi chi tiết về thiết kế.
Bước 4:
-
- Lên phương án và trình bày thiết kế nhà sơ bộ gồm mặt bằng bố trí, mặt cắt sơ bộ (thể hiện chiều cao và bố cục không gian) kèm các hình ảnh tham khảo không gian bên trong nhà, định hướng thiết kế mặt đứng. Thời gian từ 3 – 5 ngày làm việc.
Bước 5:
-
- Chỉnh sửa phương án bố trí đến khi hoàn chỉnh, phù hợp nhất với nhu cầu của khách hàng. Thời gian làm việc dựa vào mức độ chỉnh sửa của gia chủ.
Bước 6:
-
- Tạo phối cảnh hình khối kiến trúc bên ngoài công trình dựa trên mặt bằng đã được chốt. Thời gian từ 5 – 7 ngày, đối với công trình lớn và chi tiết nhiều có thể kéo dài 10 – 20 ngày (bước này có thể làm song song với bước 4).
- Nếu khách hàng có nhu cầu thêm thì bước này sẽ tiến hành thiết kế trang trí không gian nội thất. Thời gian khoảng 15 – 30 ngày tùy vào khối lượng công việc.
Bước 7:
-
- Sau khi chốt hết các phương án thiết kế, Cuộc Sống Việt sẽ thiết kế cụ thể, triển khai chi tiết các kỹ thuật thi công, sau đó bóc tách khối lượng dự toán.
- Thời gian thực hiện từ 20 – 30 ngày làm việc.
Bước 8:
-
- Bàn giao hồ sơ thiết kế chi tiết và thanh lý hợp đồng thiết kế.

7. Tại sao nên chọn Cuộc Sống Việt làm công ty thiết kế kiến trúc?
Cuộc Sống Việt là công ty thiết kế kiến trúc xây dựng và thi công trọn gói các công trình nhà ở, biệt thự, dinh thự tại Đà Lạt, Lâm Đồng và các tỉnh lân cận. Cuộc Sống Việt cung cấp đa dạng các dịch vụ bao gồm dịch vụ thiết kế nhà, dịch vụ thiết kế nhà ở, dịch vụ tư vấn kiến trúc, dịch vụ thiết kế bản vẽ cho nhiều loại hình công trình như nhà phố, biệt thự, nhà vườn, nhà ống,… với giải pháp tối ưu về công năng, thẩm mỹ và chi phí.
Với phương châm “Mỗi công trình là một tác phẩm sống”, đội ngũ kiến trúc sư của chúng tôi luôn sáng tạo và đồng hành cùng khách hàng để tạo nên không gian sống đẹp, bền vững và mang đậm dấu ấn cá nhân. Các thiết kế nhà do Cuộc Sống Việt thực hiện đều hướng đến mục tiêu kiến tạo không gian sống lý tưởng, một nơi mà bạn có thể an cư, tận hưởng trọn vẹn từng khoảnh khắc và lưu giữ những dấu ấn quan trọng của cuộc đời. Lựa chọn dịch vụ của Cuộc Sống Việt, bạn có thể hoàn toàn an tâm nhờ các ưu điểm sau:
-
- Thiết kế & thi công đúng – đủ – chính xác tới 99% theo bản vẽ.
- Công trình bền vững, đạt tiêu chuẩn cao.
- Tiến độ rõ ràng, minh bạch.
- Đảm bảo an toàn lao động tuyệt đối.
- Hỗ trợ, chăm sóc khách hàng tận tâm 24/7.

Chúng tôi tin rằng, mỗi ngôi nhà là một hành trình và Cuộc Sống Việt sẽ là người bạn đồng hành vững chắc trên hành trình ấy. Liên hệ ngay chúng tôi qua hotline 0877.777.999 để được tư vấn nhanh nhất nhé!
8. Kết luận
Bài viết trên đây Cuộc Sống Việt đã chia sẻ đến bạn các thông tin chi tiết liên quan đến hồ sơ và quy trình thiết kế kiến trúc. Hy vọng bạn đã biết thêm các thông tin quan trọng liên quan đến quá trình kiến tạo nên tổ ấm trong mơ của mình! Đừng quên theo dõi chuyên mục Blog để đọc thêm các bài viết về thiết kế và thi công nhà ở bổ ích khác nhé!