Thiết kế nhà ống là một trong những kiểu kiến trúc nhà ở phổ biến nhất tại Việt Nam, xuất hiện rộng rãi từ đô thị đến nông thôn, từ vùng núi cho đến hải đảo. Chính vì sự phổ biến đó, nhu cầu tìm kiếm ý tưởng thiết kế phù hợp cho nhà ống ngày càng được nhiều gia chủ quan tâm. Trong bài viết dưới đây, Cuộc Sống Việt xin giới thiệu đến bạn những mẫu nhà ống đẹp, hiện đại và cập nhật xu hướng mới nhất, đồng thời chia sẻ thêm về ưu – nhược điểm của loại hình nhà ở này. Mời bạn cùng theo dõi bài viết dưới đây nhé!
Thiết kế nhà ống là gì?
Nhà ống là một kiểu kiến trúc nhà ở rất phổ biến tại Việt Nam, thường có chiều ngang hẹp và chiều sâu kéo dài. Do diện tích mặt tiền hạn chế, kiểu nhà này được thiết kế nhằm tối ưu hóa không gian sử dụng.
Trước đây, thiết kế nhà hình ống chỉ chủ yếu xuất hiện tại các khu đô thị, các nơi dân cư đông đúc và quỹ đất ngày càng thu hẹp, nên mẫu nhà này còn được gọi là nhà phố. Hiện nay mô hình nhà ống đã dần phổ biến ở cả khu vực nông thôn, đặc biệt là tại các thị trấn hoặc vùng quê có nền kinh tế phát triển.

Đặc điểm của các mẫu thiết kế nhà ống đẹp
Nhờ các đặc trưng nổi bật dưới đây đã giúp nhà ống trở thành kiểu công trình được xây dựng nhiều bậc nhất tại nước ta.
Hình dáng
Thiết kế nhà ống thường có hình chữ nhật với bề ngang hẹp và chiều sâu kéo dài, được xây dựng theo kiểu hình hộp hoặc hình trụ đứng. Đây là kiểu dáng nhà ống đẹp, đặc trưng tại các đô thị và các nơi quỹ đất ngày càng bị thu hẹp và các công trình thường nằm liền kề nhau.
Mặt tiền
Phần mặt tiền của nhà ống thường hẹp và kéo dài theo chiều cao. Tùy vị trí mà nhà ống có thể sở hữu từ một đến ba mặt tiền, tuy nhiên phổ biến nhất vẫn là kiểu nhà một mặt tiền nằm sát vỉa hè hoặc mặt đường.
Diện tích đất nhỏ
Nhà ống được xây trên các mảnh đất có diện tích hạn chế, với chiều ngang nhỏ hơn chiều sâu nhiều lần. Vì vậy, thiết kế phải chú trọng tối ưu hóa công năng để đáp ứng nhu cầu sinh hoạt mà vẫn đảm bảo sự thông thoáng và tiện nghi cho gia đình.
Có nhiều tầng
Do mặt bằng hạn chế, nhà ống thường được xây dựng theo chiều cao, với cấu trúc từ 2 đến 7 tầng tùy thuộc vào quy định xây dựng của từng địa phương. Hình dáng khối hộp đứng giúp tận dụng không gian theo phương thẳng đứng hiệu quả.
Thiết kế đơn giản và thiết thực
So với các loại hình nhà ở khác, thiết kế nhà ống đơn giản và dễ thực hiện hơn. Không cần thiết phải thuê kiến trúc sư dày dạn kinh nghiệm, tuy nhiên để đảm bảo chất lượng công trình vẫn nên có sự hỗ trợ từ các kỹ sư chuyên môn. Một điểm cộng lớn là nhà ống rất dễ cải tạo hoặc nâng tầng trong tương lai khi điều kiện tài chính cho phép.
Kiến trúc hiện đại hoặc truyền thống
Tùy theo gu thẩm mỹ và sở thích của gia chủ, nhà ống có thể mang phong cách hiện đại tối giản hoặc truyền thống mang nét hoài cổ. Nhiều ngôi nhà ống lâu đời trong phố cổ hiện nay đã được cải tạo lại theo hướng hiện đại, tiện dụng hơn mà vẫn giữ được giá trị văn hóa.
Phù hợp với nhiều nhu cầu trong gia đình
Nhà ống phù hợp với nhiều mục đích, từ nhà ở cho gia đình nhỏ đến kinh doanh hoặc cho thuê. Với khả năng linh hoạt theo từng lô đất, loại hình nhà này đặc biệt tiện lợi ở những khu vực đông dân cư và mặt bằng hạn hẹp.

Ưu nhược điểm của kiến trúc thiết kế nhà ống
Giống như mọi loại hình nhà ở khác, nhà ống cũng có những điểm mạnh và hạn chế riêng. Việc hiểu rõ các ưu – nhược điểm sẽ giúp bạn có phương án thiết kế và sử dụng sao cho phù hợp, tối ưu công năng và đáp ứng nhu cầu sinh hoạt của gia đình.
Ưu điểm của nhà ống
Thiết kế nhà ống là lựa chọn lý tưởng cho nhiều gia đình hiện nay nhờ vào những lợi thế nổi bật dưới đây:
- Chi phí xây dựng hợp lý: Với diện tích đất nhỏ và quy mô xây dựng vừa phải, nhà ống giúp tiết kiệm chi phí đầu tư, phù hợp với điều kiện tài chính của nhiều hộ gia đình.
- Tối ưu diện tích đất: Nhà ống thường được xây dựng trên khuôn đất có chiều dài lớn và chiều ngang hẹp, phù hợp với đặc điểm của đô thị – nơi quỹ đất hạn chế và giá bất động sản cao.
- Thiết kế linh hoạt, dễ thích ứng: Không gian trong nhà ống có thể được sắp xếp một cách linh hoạt tùy theo nhu cầu sử dụng. Kiểu thiết kế này dễ dàng tạo ra môi trường sống tiện nghi, thoải mái cho các thành viên trong gia đình.
- Thuận tiện khi di chuyển: Do có diện tích gọn và kết cấu hợp lý, việc di chuyển giữa các tầng trong nhà ống thường nhanh chóng và thuận tiện, đặc biệt phù hợp với gia đình có người lớn tuổi hoặc trẻ nhỏ.
- Dễ dàng sửa chữa, bảo trì: Với kết cấu đơn giản, thiết kế nhà ống cho phép dễ dàng thực hiện các công việc bảo trì, cải tạo hoặc nâng cấp mà không tốn quá nhiều thời gian hay chi phí.
- Thời gian thi công nhanh: Nhờ thiết kế không quá phức tạp, quá trình xây dựng nhà ống diễn ra nhanh chóng. Chỉ sau vài tháng thi công, gia chủ có thể hoàn thiện nội thất và đưa vào sử dụng ngay.

Nhược điểm
Bên cạnh những lợi thế rõ rệt, các kiểu thiết kế nhà ống đẹp cũng tồn tại một số hạn chế mà người xây dựng cần cân nhắc trước khi lựa chọn:
- Diện tích sử dụng bị giới hạn: Với mặt bằng đất thường hẹp ngang và chiều sâu lớn, không gian bên trong nhà ống dễ trở nên chật chội, đặc biệt nếu gia đình có nhiều thành viên.
- Hạn chế ánh sáng và thông gió: Do thường nằm sát vách với các công trình bên cạnh, thiết kế nhà ống rất khó bố trí hệ thống cửa sổ bên hông, khiến việc lấy sáng và thông gió tự nhiên gặp nhiều trở ngại.
- Khó đáp ứng đầy đủ nhu cầu sinh hoạt: Diện tích nhỏ khiến việc thiết kế các phòng chức năng riêng biệt trở nên khó khăn. Một số nhu cầu sử dụng đặc thù của từng thành viên có thể không được đáp ứng đầy đủ nếu không có giải pháp thiết kế phù hợp.
- Ảnh hưởng bởi tiếng ồn: Nhà ống thường được xây dựng tại các khu đô thị đông đúc, gần mặt đường hoặc hẻm nhỏ nên dễ bị ảnh hưởng bởi tiếng ồn từ giao thông và sinh hoạt xung quanh.

Các thiết kế nhà ống đẹp theo nhiều phong cách
Ngày nay, nhà ống không chỉ dừng lại ở công năng sử dụng mà còn là sự thể hiện phong cách sống và gu thẩm mỹ của gia chủ. Dưới đây là những mẫu thiết kế nhà ống đẹp nhất, được nhiều người lựa chọn:
Nhà ống hiện đại
Phong cách hiện đại hướng đến sự tiện nghi và tối ưu hóa không gian. Với thiết kế tối giản, đường nét dứt khoát, vật liệu hiện đại và bố cục thông minh, nhà ống hiện đại tạo nên không gian sống thoáng đãng, tràn ngập ánh sáng tự nhiên. Các khu vực cây xanh cũng được bố trí hợp lý để mang lại cảm giác gần gũi với thiên nhiên.

Mẫu nhà ống tân cổ điển sang trọng
Các thiết kế mẫu nhà ống đẹp có sự kết hợp giữa nét đẹp cổ điển và tinh thần hiện đại tạo nên phong cách tân cổ điển sang trọng và đẳng cấp. Những chi tiết hoa văn mềm mại, phào chỉ tinh xảo cùng màu sắc nhã nhặn tạo nên vẻ đẹp quý phái, phù hợp với những gia chủ yêu thích sự thanh lịch và trang trọng.

Thiết kế nhà ống cổ điển
Thiết kế cổ điển chú trọng sự đối xứng và tỷ lệ hài hòa. Mặt tiền thường được trang trí với các cột trụ vững chãi, hoa văn cầu kỳ và chi tiết phào chỉ mang tính nghệ thuật cao, tạo cảm giác bề thế và uy nghi cho tổng thể công trình.

Thiết kế nhà ống Indochine
Là sự giao thoa giữa kiến trúc truyền thống Á Đông và phong cách Pháp lãng mạn, nhà ống Indochine mang đến vẻ đẹp hoài cổ nhưng vẫn gần gũi, tinh tế. Vật liệu gỗ, gạch bông, con tiện, cùng cây xanh được bố trí hài hòa, tạo nên không gian sống đậm chất nghệ thuật và bản sắc văn hóa.

Thiết kế nhà ống Minimalism – Phong cách tối giản
Minimalism là lựa chọn lý tưởng cho những ai yêu thích sự tinh gọn và hiện đại. Thiết kế theo phong cách này chú trọng vào công năng, sử dụng gam màu trung tính như trắng, be, xám. Nội thất được chọn lọc kỹ lưỡng, đơn giản mà tinh tế, tạo ra không gian sống nhẹ nhàng, thoải mái và dễ bảo trì.

Nhà ống Wabi Sabi
Wabi Sabi đề cao vẻ đẹp của sự mộc mạc và không hoàn hảo. Thiết kế sử dụng chất liệu tự nhiên như gỗ, đá thô, cùng với tông màu trầm ấm, mang lại cảm giác yên bình và gần gũi. Đây là phong cách phù hợp với những ai tìm kiếm sự tĩnh lặng và giản dị trong cuộc sống đô thị.

Thiết kế nhà ống phong cách Địa Trung Hải
Lấy cảm hứng từ vùng biển Địa Trung Hải, phong cách này nổi bật với sự phóng khoáng, tươi sáng và đầy chất nghệ thuật. Các gam màu như trắng, xanh biển, vàng nhạt kết hợp cùng nội thất gỗ, gốm, đá tự nhiên tạo nên không gian sống lãng mạn, thoải mái và đầy sức sống.

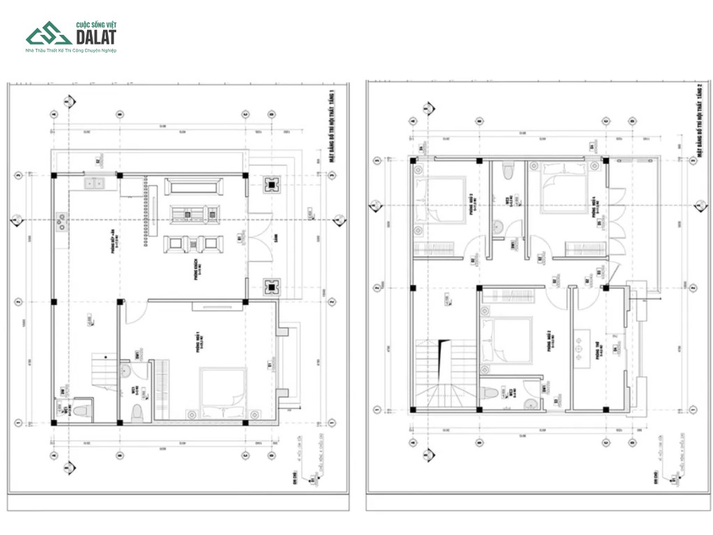
Một số mẫu bản vẽ nhà ống đẹp, đầy đủ công năng
Nội dung tiếp theo mà Cuộc Sống Việt muốn gửi đến quý vị độc giả đó là bộ sưu tập các các mẫu nhà ống 2 tầng độc đáo, tiện nghi hiện nay. Mọi người hãy cùng chúng tôi điểm qua trong những mẫu nhà ống mới nhất dưới đây nhé!
Bản vẽ nhà ống 2 tầng hiện đại
Kiểu nhà ống với diện tích 80m², các đường nét trang trí ở mặt tiền tuy đơn giản nhưng vẫn toát lên vẻ đẹp hiện đại. Vì sở hữu mặt tiền hẹp, ngôi nhà được thiết kế theo dạng nhà ống, tận dụng tối đa chiều sâu để bố trí không gian sống hợp lý. Việc sử dụng cửa kính lớn giúp đón ánh sáng tự nhiên hiệu quả, mang lại cảm giác thoáng đãng cho toàn bộ ngôi nhà.

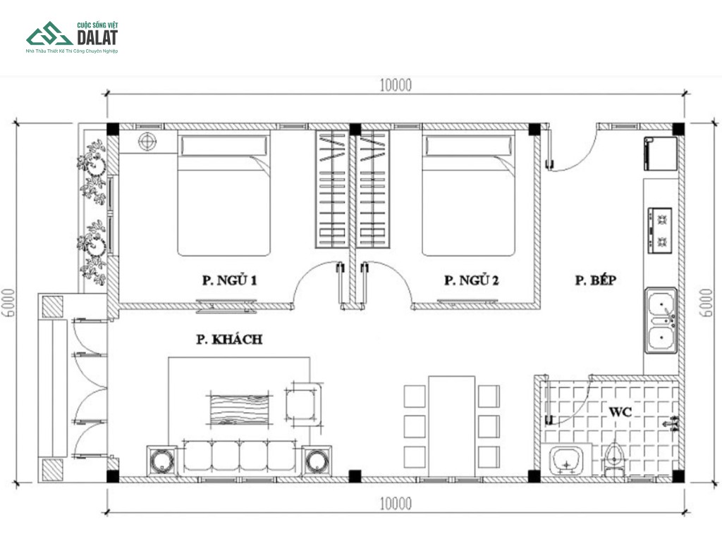
Bản vẽ thiết kế nhà ống đẹp 2 tầng 70m²
Bản thiết kế nhà ống có mặt bằng tầng trệt được bố trí bằng cách sử dụng khuôn viên trước sân để xe, một phân làm phòng khách rộng rãi. Phòng ăn được bố trí đối diện với phòng ngủ và nằm cạnh lối cầu thang dẫn lên tầng một.

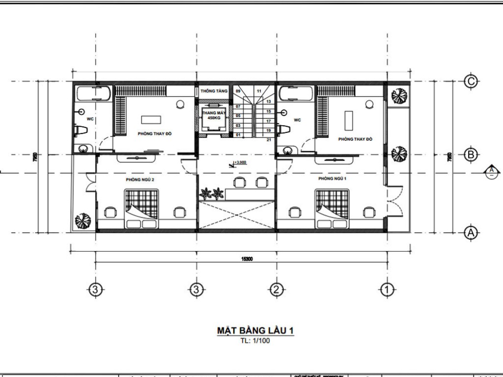
Bản vẽ nhà ống 2 tầng mái Thái
Bản vẽ mặt bằng nhà ống 2 tầng mái Thái mang đến vẻ ngoài khang trang, hiện đại và đầy ấn tượng. Việc kết hợp giữa kiến trúc nhà ống và mái Thái giúp tổng thể ngôi nhà trở nên cao ráo, thoáng mát hơn, đồng thời tạo điểm nhấn nổi bật về mặt thẩm mỹ.

Bản vẽ nhà ống đẹp 2 tầng mái Nhật
Cách thiết kế nhà ống đẹp mái Nhật này khiến cho toàn bộ công trình nhà ở của bạn trở nên thanh lịch và đầy thẩm mỹ. Sau đây là bản thiết kế nhà ống đẹp 2 tầng mái Nhật, gia chủ hãy tham khảo nhé!

Lưu ý khi thực hiện mẫu nhà ống thiết kế đẹp
Để sở hữu một ngôi nhà ống vừa tiện nghi, vừa thẩm mỹ, việc thiết kế nhà ống cần được nghiên cứu kỹ lưỡng và phù hợp với nhu cầu sử dụng thực tế. Dưới đây là những yếu tố quan trọng mà bạn nên cân nhắc:
Phân chia không gian hợp lý
Việc bố trí không gian trong nhà ống cần đảm bảo sự kết nối giữa các khu vực sinh hoạt chung như phòng khách và bếp để tạo cảm giác liền mạch. Ánh sáng tự nhiên nên được tận dụng tối đa qua cửa chính, cửa sổ hoặc giếng trời nhằm tăng sự thông thoáng. Các không gian riêng tư như phòng ngủ cần đặt ở khu vực yên tĩnh để đảm bảo sự riêng tư và thoải mái.
Chọn phong cách thiết kế phù hợp
Tùy theo sở thích, gia chủ có thể lựa chọn phong cách hiện đại, tân cổ điển, truyền thống hay tối giản để phù hợp với không gian nhà ống. Phong cách hiện đại mang đến sự trẻ trung, tiện nghi; tân cổ điển thể hiện sự sang trọng; còn phong cách truyền thống và tối giản tạo cảm giác ấm cúng, nhẹ nhàng.
Lựa chọn vật liệu xây dựng
Vật liệu sử dụng nên phù hợp với phong cách thiết kế nhà ống và điều kiện khí hậu. Bạn có thể ưu tiên các loại vật liệu tự nhiên như gỗ, đá để tạo cảm giác gần gũi. Các vật liệu hiện đại như kính, nhôm, thép cũng được ưa chuộng nhờ khả năng mở rộng không gian và tăng độ sáng. Ngoài ra, nên lựa chọn vật liệu có tính cách âm, cách nhiệt tốt để đảm bảo sự yên tĩnh và dễ chịu khi sinh hoạt.
Tối ưu hóa không gian
Không gian trong nhà ống nên được tận dụng triệt để bằng cách sử dụng các món nội thất thông minh như tủ âm tường, bàn gấp hay giường đa năng. Bạn có thể biến những khu vực như gầm cầu thang thành kho chứa đồ hoặc góc làm việc nhỏ. Ngoài ra, gương trang trí cũng là giải pháp giúp không gian trông rộng rãi và sáng sủa hơn.
Chú ý đến hệ thống thông gió và chiếu sáng
Hệ thống thông gió và chiếu sáng đóng vai trò quan trọng trong việc đảm bảo sự thoải mái khi sử dụng. Giếng trời, quạt thông gió và cửa sổ cần được bố trí khoa học để lưu thông không khí và đón ánh sáng tự nhiên. Thiết kế nhà ống hợp lý sẽ giúp không gian trong nhà luôn thoáng đãng và tiết kiệm năng lượng.
Đảm bảo phong thủy
Vì nhà ống thường chỉ có một mặt tiếp xúc với ánh sáng, việc sắp xếp nội thất theo phong thủy cần được tính toán cẩn thận để duy trì sự cân bằng năng lượng. Các yếu tố như hướng cửa, vị trí bếp và bàn thờ cần được bố trí hợp lý, vừa đảm bảo phong thủy vừa thuận tiện trong sử dụng.
Đảm bảo thiết kế nhà ống hài hòa với môi trường
Nhà ống thường nằm liền kề nhau trong các khu dân cư đông đúc, vì vậy cần đặc biệt chú ý đến tính thẩm mỹ và sự đồng bộ với cảnh quan xung quanh. Việc chọn màu sắc, chất liệu mặt tiền và thiết kế ngoại thất hài hòa sẽ giúp ngôi nhà đẹp hơn, bền vững hơn cũng như góp phần xây dựng không gian sống văn minh.

Cuộc Sống Việt – Thiết kế nhà ống chuyên nghiệp, uy tín
Với hơn 10 năm hoạt động trong lĩnh vực thiết kế và thi công nhà ở, Cuộc Sống Việt đã khẳng định được vị thế là một đơn vị kiến trúc xây dựng chuyên nghiệp, đáng tin cậy. Chúng tôi xây dựng quy trình làm việc rõ ràng, minh bạch và luôn cam kết mang đến những sản phẩm thiết kế kiến trúc nhà ống – thi công nhà ống đạt chuẩn, đúng tiến độ và chất lượng.
Cuộc Sống Việt luôn đặt chất lượng thiết kế và trải nghiệm khách hàng lên hàng đầu. Chúng tôi cam kết:
- Tối ưu không gian sống, đảm bảo công năng hiệu quả.
- Thiết kế cá nhân hóa theo yêu cầu riêng của từng gia chủ.
- Bàn giao thiết kế đúng tiến độ, đúng quy chuẩn kỹ thuật.
- Đội ngũ kiến trúc sư giàu kinh nghiệm, chuyên môn vững vàng.
- Chính sách hoàn tiền nếu khách hàng không hài lòng với thiết kế.

Mọi thông tin chi tiết xin vui lòng liên hệ hotline 0877.777.999 để được tư vấn thiết kế nhà ống đẹp nhanh nhất!
Kết luận
Với sự đa dạng về mẫu mã, phong cách kiến trúc cùng những ưu điểm nổi bật, thiết kế nhà ống vẫn giữ vững vị trí là lựa chọn ưu tiên của nhiều gia đình Việt Nam. Cuộc Sống Việt hy vọng rằng những chia sẻ trong bài viết trên sẽ mang đến cho bạn nhiều cảm hứng và gợi ý hữu ích để thiết kế một ngôi nhà ống vừa đẹp mắt, hiện đại, vừa đáp ứng đầy đủ nhu cầu sinh hoạt của gia đình.
